1階路面、昭島市松原町の美容室・理容室居抜き物件のご案内です。

ゲスト

営業時間:9:30~18:30(土日・祝日を除く)

ゲスト

1階路面、昭島市松原町の美容室・理容室居抜き物件のご案内です。

居抜き市場トップ 居抜き物件、貸店舗を探す JR青梅線 , 昭島市 1階路面、昭島市松原町の美容室・理容室居抜き物件詳細

JR青梅線

拝島駅

徒歩2

所在地

昭島市松原町・・・詳細は

拝島の美容室・理容室居抜きの内装
拝島の美容室・理容室居抜きの外観

ログイン後に

物件情報の全てがご覧いただけます。

会員登録(無料)
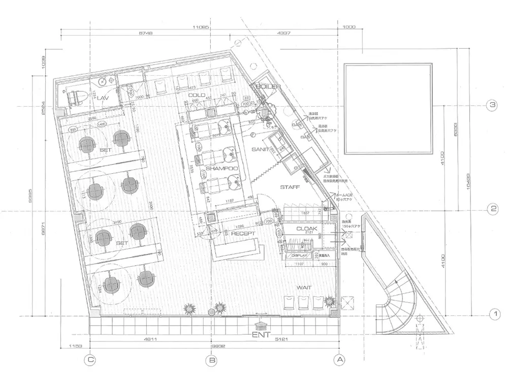
拝島の美容室・理容室居抜きの平面図

ログイン後に

物件情報の全てがご覧いただけます。

会員登録(無料)
拝島の美容室・理容室居抜きの内装
拝島の美容室・理容室居抜きの外観
拝島の美容室・理容室居抜きの平面図
賃料

418,000円(税込)

階数/面積

1F / 31.67坪 (104.7㎡)

敷金・保証金

100万円

造作代金

無償譲渡

飲食条件

飲食不可

物件タイプ/現業態

居抜き / 美容室・理容室

※会員限定の
情報
ございます。

会員限定の情報がございます。

会員登録(無料)をしていただくと、 物件詳細、物件資料のダウンロード、地図での立地確認など 会員限定の公開情報を閲覧・取得できるようになります。

会員登録(無料)
  • 路面店

JR青梅線『拝島駅』徒歩2分、美容室居抜き物件のご紹介です。駅南口からすぐの好立地!店内はセット面8席、シャンプー台3台のレイアウトで、造作代は無償です。地元密着型のアットホームなサロンをお考えの方におすすめ!諸条件等、お気軽にお問合せください。

物件概要

会員登録(無料)をすることで
物件情報の全てがご覧いただけます。

会員登録(無料)をしていただくと、他社には出回っていない物件情報の収集、
非会員の方には閲覧できない詳細情報、物件資料のダウンロード、
地図での立地確認など会員限定公開情報を閲覧・取得できるようになります。

会員登録(無料)

地図

会員登録後にご覧いただけます。

会員登録(無料)
×
区分
新着・未公開物件情報

登録で 会員規約プライバシーポリシー に同意したものとします。

※必須

会員登録(無料)
物件詳細や公開情報がご覧になれます!