下井草駅、造作無償の1階居酒屋居抜き店舗のご案内です。

ゲスト

営業時間:9:30~18:30(土日・祝日を除く)

ゲスト

下井草駅、造作無償の1階居酒屋居抜き店舗のご案内です。

居抜き市場トップ 居抜き物件、貸店舗を探す 西武新宿線 , 杉並区 下井草駅、造作無償の1階居酒屋居抜き店舗情報

西武新宿線

下井草駅

徒歩3

所在地

杉並区下井草・・・詳細は

下井草の居酒屋居抜きの内装
下井草の居抜き店舗の内装

ログイン後に

物件情報の全てがご覧いただけます。

会員登録(無料)
下井草の居抜き店舗の外観

ログイン後に

物件情報の全てがご覧いただけます。

会員登録(無料)
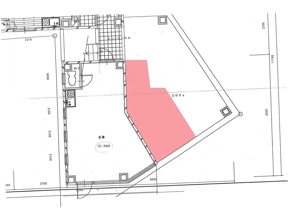
下井草の居酒屋居抜きの平面図

ログイン後に

物件情報の全てがご覧いただけます。

会員登録(無料)
下井草の居抜き店舗の地図

ログイン後に

物件情報の全てがご覧いただけます。

会員登録(無料)
下井草の居酒屋居抜きの内装
下井草の居抜き店舗の内装
下井草の居抜き店舗の外観
下井草の居酒屋居抜きの平面図
下井草の居抜き店舗の地図
賃料

148,500円(税込)

階数/面積

1F / 6.48坪 (21.42㎡)

敷金・保証金

6ヶ月分

造作代金

無償譲渡

飲食条件

飲食可

物件タイプ/現業態

居抜き / 居酒屋

※会員限定の
情報
ございます。

会員限定の情報がございます。

会員登録(無料)をしていただくと、 物件詳細、物件資料のダウンロード、地図での立地確認など 会員限定の公開情報を閲覧・取得できるようになります。

会員登録(無料)
  • 値下げ

★居酒屋居抜き★
駅から続く生活動線上の交差点角に立地
カウンターメインでワンオペ向きな小箱物件

【インフラ】電灯:有    動力:無    ガス:4号メーター    水道:20mm
【厨房排気】有 /換気扇
【空調】有 / 業務用
【グリスト】有 /地中埋設型
【席数】カウンター7席
【トイレ】有 /洋式
【閉店理由】人材不足  
【営業年数】10年以上
【営業時間制限】24時以降は相談  
【不可業態】カラオケ不可
【引渡状態】居抜き
【間口】約3.5m
【天高】約2.3m
※記載の店舗情報は正確性を保証するものではございません。

物件概要

会員登録(無料)をすることで
物件情報の全てがご覧いただけます。

会員登録(無料)をしていただくと、他社には出回っていない物件情報の収集、
非会員の方には閲覧できない詳細情報、物件資料のダウンロード、
地図での立地確認など会員限定公開情報を閲覧・取得できるようになります。

会員登録(無料)

地図

会員登録後にご覧いただけます。

会員登録(無料)
×
区分
新着・未公開物件情報

登録で 会員規約プライバシーポリシー に同意したものとします。

※必須

会員登録(無料)
物件詳細や公開情報がご覧になれます!