重飲食ができる1階路面のスケルトン貸店舗・テナント物件のご案内です。

ゲスト

営業時間:9:30~18:30(土日・祝日を除く)

ゲスト

重飲食ができる1階路面のスケルトン貸店舗・テナント物件のご案内です。

居抜き市場トップ 居抜き物件、貸店舗を探す 西武新宿線 , 狭山市 重飲食ができる1階路面のスケルトン貸店舗・テナント物件情報

西武新宿線

狭山市駅

徒歩1

所在地

狭山市入間川・・・詳細は

狭山市のスケルトン物件の外観
狭山市のスケルトン物件の平面図

ログイン後に

物件情報の全てがご覧いただけます。

会員登録(無料)
狭山市のスケルトン物件の外観
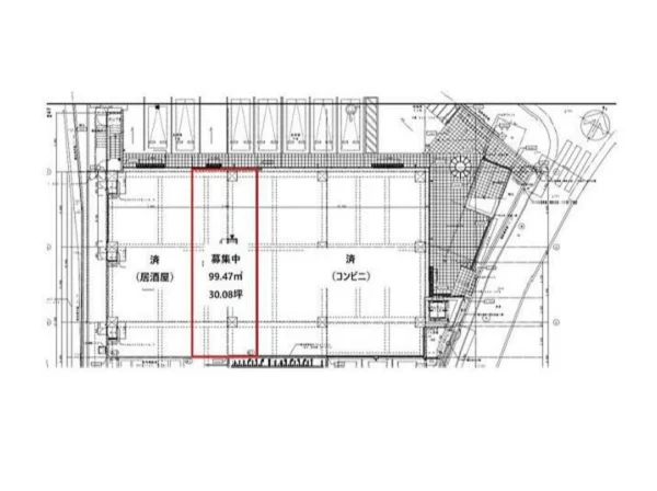
狭山市のスケルトン物件の平面図
賃料

446,836円(税込)

階数/面積

1F / 30.08坪 (99.47㎡)

敷金・保証金

5ヶ月分

飲食条件

重飲食可

物件タイプ/現業態

スケルトン

※会員限定の
情報
ございます。

会員限定の情報がございます。

会員登録(無料)をしていただくと、 物件詳細、物件資料のダウンロード、地図での立地確認など 会員限定の公開情報を閲覧・取得できるようになります。

会員登録(無料)
  • 路面店

西武新宿線『狭山市駅』徒歩1分、重飲食店ご相談可能な貸店舗のご紹介です。駅西口を出て左折してすぐの、通り沿いのマンションのテナント区画の1階の一区画で、視認性良好です。並びや他フロアでは、飲食店・コンビニ・フィットネスジムが営業中。駅と住宅街との動線上の立地につき、地域住民の集客が期待できます。出店可能業態などの詳細は、レスタンダードまでお問い合わせください。

物件概要

会員登録(無料)をすることで
物件情報の全てがご覧いただけます。

会員登録(無料)をしていただくと、他社には出回っていない物件情報の収集、
非会員の方には閲覧できない詳細情報、物件資料のダウンロード、
地図での立地確認など会員限定公開情報を閲覧・取得できるようになります。

会員登録(無料)

地図

会員登録後にご覧いただけます。

会員登録(無料)
×
区分
新着・未公開物件情報

登録で 会員規約プライバシーポリシー に同意したものとします。

※必須

会員登録(無料)
物件詳細や公開情報がご覧になれます!