沼袋駅徒歩2分のスケルトン店舗物件のご案内です。

ゲスト

営業時間:9:30~18:30(土日・祝日を除く)

ゲスト

沼袋駅徒歩2分のスケルトン店舗物件のご案内です。

居抜き市場トップ 居抜き物件、貸店舗を探す 西武新宿線 , 中野区 沼袋駅徒歩2分のスケルトン店舗物件詳細

西武新宿線

沼袋駅

徒歩2

所在地

中野区沼袋・・・詳細は

沼袋のスケルトン物件の外観
沼袋のスケルトン物件の内装

ログイン後に

物件情報の全てがご覧いただけます。

会員登録(無料)
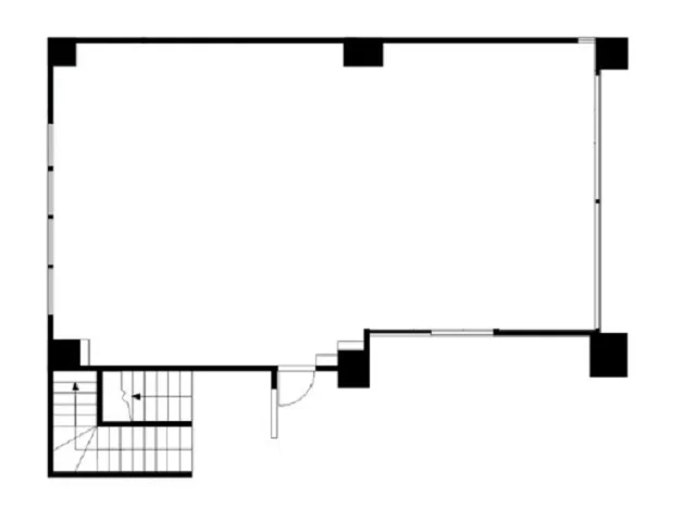
貸店舗(スケルトン)の平面図

ログイン後に

物件情報の全てがご覧いただけます。

会員登録(無料)
沼袋のスケルトン物件の外観
沼袋のスケルトン物件の内装
貸店舗(スケルトン)の平面図
賃料

265,000円(税込)

階数/面積

1F / 18.78坪 (62.11㎡)

敷金・保証金

6ヶ月分

飲食条件

飲食可(重飲食不可)

物件タイプ/現業態

スケルトン

※会員限定の
情報
ございます。

会員限定の情報がございます。

会員登録(無料)をしていただくと、 物件詳細、物件資料のダウンロード、地図での立地確認など 会員限定の公開情報を閲覧・取得できるようになります。

会員登録(無料)

西武新宿線『沼袋駅』徒歩2分、軽飲食店ご相談可能な貸店舗のご案内です。内装デザイン自由なスケルトン引き渡し!上階ではフィットネスジムやアミューズメントバーが盛業中です。駅前から住宅街へ続く、飲食店が立ち並ぶエリアで、地域住民を中心とした集客が期待できます。諸条件等、お気軽にお問い合わせください

物件概要

会員登録(無料)をすることで
物件情報の全てがご覧いただけます。

会員登録(無料)をしていただくと、他社には出回っていない物件情報の収集、
非会員の方には閲覧できない詳細情報、物件資料のダウンロード、
地図での立地確認など会員限定公開情報を閲覧・取得できるようになります。

会員登録(無料)

地図

会員登録後にご覧いただけます。

会員登録(無料)
×
区分
新着・未公開物件情報

登録で 会員規約プライバシーポリシー に同意したものとします。

※必須

会員登録(無料)
物件詳細や公開情報がご覧になれます!