調布市緑ケ丘にある1階の事務所仕様の貸店舗・テナント物件のご案内です。

ゲスト

営業時間:9:30~18:30(土日・祝日を除く)

ゲスト

調布市緑ケ丘にある1階の事務所仕様の貸店舗・テナント物件のご案内です。

居抜き市場トップ 居抜き物件、貸店舗を探す 京王線 , 調布市 調布市緑ケ丘にある1階の事務所仕様の貸店舗・テナント物件詳細

京王線

仙川駅

徒歩9

所在地

調布市緑ケ丘・・・詳細は

貸店舗(事務所仕様)の外観
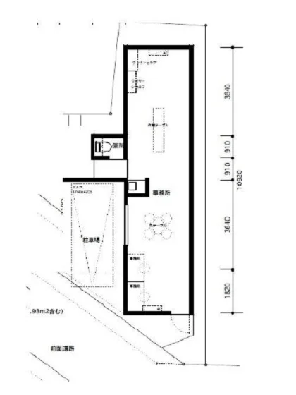
仙川の事務所仕様物件の平面図

ログイン後に

物件情報の全てがご覧いただけます。

会員登録(無料)
貸店舗(事務所仕様)の外観
仙川の事務所仕様物件の平面図
賃料

165,000円(税込)

階数/面積

1F / 10.14坪 (33.53㎡)

敷金・保証金

3ヶ月分

飲食条件

飲食可

物件タイプ/現業態

事務所仕様

※会員限定の
情報
ございます。

会員限定の情報がございます。

会員登録(無料)をしていただくと、 物件詳細、物件資料のダウンロード、地図での立地確認など 会員限定の公開情報を閲覧・取得できるようになります。

会員登録(無料)

京王線『仙川駅』徒歩9分、飲食店ご相談可能な貸店舗のご案内です。うれしい駐⾞場1台付!(賃料込み)現状ガス引き込みがございません。トイレ・キッチンは設備、カーテン・照明・エアコンは残置物になります。 諸条件等、お気軽にお問合せください。

物件概要

会員登録(無料)をすることで
物件情報の全てがご覧いただけます。

会員登録(無料)をしていただくと、他社には出回っていない物件情報の収集、
非会員の方には閲覧できない詳細情報、物件資料のダウンロード、
地図での立地確認など会員限定公開情報を閲覧・取得できるようになります。

会員登録(無料)

地図

会員登録後にご覧いただけます。

会員登録(無料)
×
区分
新着・未公開物件情報

登録で 会員規約プライバシーポリシー に同意したものとします。

※必須

会員登録(無料)
物件詳細や公開情報がご覧になれます!