重飲食ができる1階路面のスケルトン貸店舗・テナント物件のご案内です。

ゲスト

営業時間:9:30~18:30(土日・祝日を除く)

ゲスト

重飲食ができる1階路面のスケルトン貸店舗・テナント物件のご案内です。

居抜き市場トップ 居抜き物件、貸店舗を探す JR青梅線 , 羽村市 重飲食ができる1階路面のスケルトン貸店舗・テナント物件情報

JR青梅線

小作駅

徒歩3

所在地

羽村市小作台・・・詳細は

小作のスケルトン物件の外観
貸店舗(スケルトン)の外観

ログイン後に

物件情報の全てがご覧いただけます。

会員登録(無料)
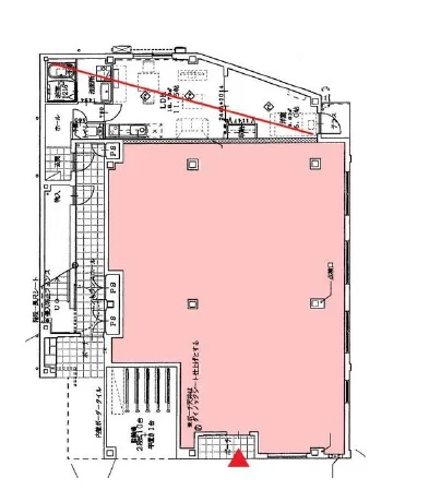
貸店舗(スケルトン)の平面図

ログイン後に

物件情報の全てがご覧いただけます。

会員登録(無料)
小作のスケルトン物件の地図

ログイン後に

物件情報の全てがご覧いただけます。

会員登録(無料)
小作のスケルトン物件の外観
貸店舗(スケルトン)の外観
貸店舗(スケルトン)の平面図
小作のスケルトン物件の地図
賃料

398,000円(税込)

階数/面積

1F / 38.23坪 (126.4㎡)

敷金・保証金

3ヶ月分

飲食条件

重飲食可

物件タイプ/現業態

スケルトン

※会員限定の
情報
ございます。

会員限定の情報がございます。

会員登録(無料)をしていただくと、 物件詳細、物件資料のダウンロード、地図での立地確認など 会員限定の公開情報を閲覧・取得できるようになります。

会員登録(無料)
  • 路面店

JR青梅線『小作駅』徒歩3分、重飲食相談可能な貸店舗のご紹介です。駅東口ロータリー近くの都道沿い建物の1階貸店舗で、2024年4月築の築浅物件です。視認性良好で、周辺住民や近隣にお勤めの方の集客が期待できます。まずはお気軽にお問い合わせください。

物件概要

会員登録(無料)をすることで
物件情報の全てがご覧いただけます。

会員登録(無料)をしていただくと、他社には出回っていない物件情報の収集、
非会員の方には閲覧できない詳細情報、物件資料のダウンロード、
地図での立地確認など会員限定公開情報を閲覧・取得できるようになります。

会員登録(無料)

地図

会員登録後にご覧いただけます。

会員登録(無料)
×
区分
新着・未公開物件情報

登録で 会員規約プライバシーポリシー に同意したものとします。

※必須

会員登録(無料)
物件詳細や公開情報がご覧になれます!