調布駅徒歩1分の自由に造作が可能なスケルトン物件のご案内です。

ゲスト

営業時間:9:30~18:30(土日・祝日を除く)

ゲスト

調布駅徒歩1分の自由に造作が可能なスケルトン物件のご案内です。

居抜き市場トップ 居抜き物件、貸店舗を探す 京王相模原線 , 調布市 調布駅徒歩1分の自由に造作が可能なスケルトン物件詳細

京王相模原線

調布駅

徒歩1

所在地

調布市布田・・・詳細は

調布のスケルトン物件の外観
調布のスケルトン店舗物件の外観

ログイン後に

物件情報の全てがご覧いただけます。

会員登録(無料)
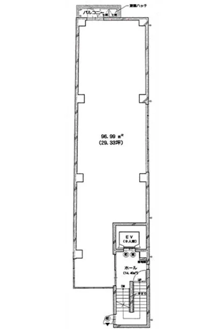
調布のスケルトン店舗物件の平面図

ログイン後に

物件情報の全てがご覧いただけます。

会員登録(無料)
調布のスケルトン店舗物件の地図

ログイン後に

物件情報の全てがご覧いただけます。

会員登録(無料)
調布のスケルトン物件の外観
調布のスケルトン店舗物件の外観
調布のスケルトン店舗物件の平面図
調布のスケルトン店舗物件の地図
賃料

733,250円(税込)

階数/面積

3F / 29.33坪 (96.99㎡)

敷金・保証金

8ヶ月分

飲食条件

飲食可

物件タイプ/現業態

スケルトン

※会員限定の
情報
ございます。

会員限定の情報がございます。

会員登録(無料)をしていただくと、 物件詳細、物件資料のダウンロード、地図での立地確認など 会員限定の公開情報を閲覧・取得できるようになります。

会員登録(無料)

京王線『調布駅』徒歩1分、飲食店相談可能な貸テナントのご紹介です。駅ロータリー目の前の好立地!駅利用客を中心に集客が期待できます。飲食店ほかサービス店、医療テナントにもおすすめ!諸条件等、お気軽にお問合せください。

物件概要

会員登録(無料)をすることで
物件情報の全てがご覧いただけます。

会員登録(無料)をしていただくと、他社には出回っていない物件情報の収集、
非会員の方には閲覧できない詳細情報、物件資料のダウンロード、
地図での立地確認など会員限定公開情報を閲覧・取得できるようになります。

会員登録(無料)

地図

会員登録後にご覧いただけます。

会員登録(無料)
×
区分
新着・未公開物件情報

登録で 会員規約プライバシーポリシー に同意したものとします。

※必須

会員登録(無料)
物件詳細や公開情報がご覧になれます!