町田駅徒歩1分のラーメン居抜き物件のご案内です。

ゲスト

営業時間:9:30~18:30(土日・祝日を除く)

ゲスト

町田駅徒歩1分のラーメン居抜き物件のご案内です。

居抜き市場トップ 居抜き物件、貸店舗を探す 小田急小田原線 , 町田市 町田駅徒歩1分のラーメン居抜き物件情報

小田急小田原線

町田駅

徒歩1

所在地

町田市中町・・・詳細は

町田のラーメン居抜きの外観
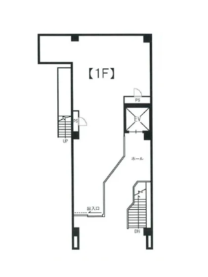
町田のラーメン居抜きの平面図

ログイン後に

物件情報の全てがご覧いただけます。

会員登録(無料)
町田のラーメン居抜きの外観
町田のラーメン居抜きの平面図
賃料

698,544円(税込)

階数/面積

1F / 17.63坪 (58.31㎡)

敷金・保証金

770万円

造作代金

-

飲食条件

飲食可

物件タイプ/現業態

居抜き / ラーメン

※会員限定の
情報
ございます。

会員限定の情報がございます。

会員登録(無料)をしていただくと、 物件詳細、物件資料のダウンロード、地図での立地確認など 会員限定の公開情報を閲覧・取得できるようになります。

会員登録(無料)

小田急小田原線『町田駅』徒歩1分、駅前繁華街からラーメン店居抜き物件のご紹介です。飲食店やサービス店が立ち並ぶ絹の道栄通りに面したビル1階テナント!昼夜問わず人通り多く、集客が期待できる立地です。人気エリアのためお問い合わせはお早めに!

物件概要

会員登録(無料)をすることで
物件情報の全てがご覧いただけます。

会員登録(無料)をしていただくと、他社には出回っていない物件情報の収集、
非会員の方には閲覧できない詳細情報、物件資料のダウンロード、
地図での立地確認など会員限定公開情報を閲覧・取得できるようになります。

会員登録(無料)

地図

会員登録後にご覧いただけます。

会員登録(無料)
×
区分
新着・未公開物件情報

登録で 会員規約プライバシーポリシー に同意したものとします。

※必須

会員登録(無料)
物件詳細や公開情報がご覧になれます!