道路に面した1階のスケルトン貸店舗・テナント物件のご案内です。

ゲスト

営業時間:9:30~18:30(土日・祝日を除く)

ゲスト

道路に面した1階のスケルトン貸店舗・テナント物件のご案内です。

居抜き市場トップ 居抜き物件、貸店舗を探す 西武池袋線 , 所沢市 道路に面した1階のスケルトン貸店舗・テナント物件詳細

西武池袋線

所沢駅

徒歩3

所在地

所沢市東住吉・・・詳細は

所沢のスケルトン物件の外観
貸店舗(スケルトン)の内装

ログイン後に

物件情報の全てがご覧いただけます。

会員登録(無料)
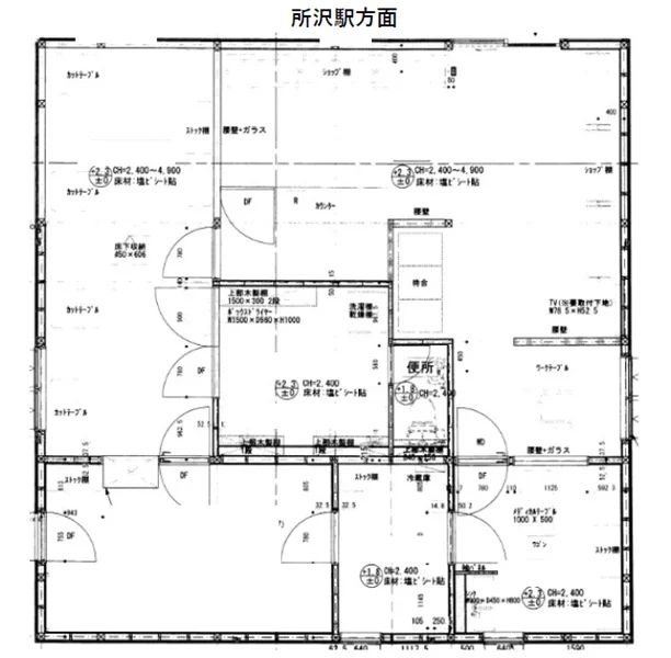
所沢のスケルトン物件の平面図

ログイン後に

物件情報の全てがご覧いただけます。

会員登録(無料)
所沢のスケルトン物件の外観
貸店舗(スケルトン)の内装
所沢のスケルトン物件の平面図
賃料

690,200円(税込)

階数/面積

1F / 25.05坪 (82.81㎡)

敷金・保証金

12ヶ月分

飲食条件

飲食可

物件タイプ/現業態

スケルトン

※会員限定の
情報
ございます。

会員限定の情報がございます。

会員登録(無料)をしていただくと、 物件詳細、物件資料のダウンロード、地図での立地確認など 会員限定の公開情報を閲覧・取得できるようになります。

会員登録(無料)
  • 路面店

西武池袋線『所沢駅』3分、カフェや美容室におすすめな貸テナントのご紹介です。駅前で人通り多く集客が見込める立地です。前面ガラス張りで目立つテナント!直近ではペットサロンが営業しており、現況でのお引き渡しとなります。諸条件等、お気軽にお問合せください。

物件概要

会員登録(無料)をすることで
物件情報の全てがご覧いただけます。

会員登録(無料)をしていただくと、他社には出回っていない物件情報の収集、
非会員の方には閲覧できない詳細情報、物件資料のダウンロード、
地図での立地確認など会員限定公開情報を閲覧・取得できるようになります。

会員登録(無料)

地図

会員登録後にご覧いただけます。

会員登録(無料)
×
区分
新着・未公開物件情報

登録で 会員規約プライバシーポリシー に同意したものとします。

※必須

会員登録(無料)
物件詳細や公開情報がご覧になれます!