所沢市和ケ原にある2階の歯科居抜き物件のご案内です。

ゲスト

営業時間:9:30~18:30(土日・祝日を除く)

ゲスト

所沢市和ケ原にある2階の歯科居抜き物件のご案内です。

居抜き市場トップ 居抜き物件、貸店舗を探す 西武池袋線 , 所沢市 所沢市和ケ原にある2階の歯科居抜き物件詳細

西武池袋線

狭山ヶ丘駅

徒歩10

所在地

所沢市和ケ原・・・詳細は

狭山ヶ丘の居抜き店舗の外観
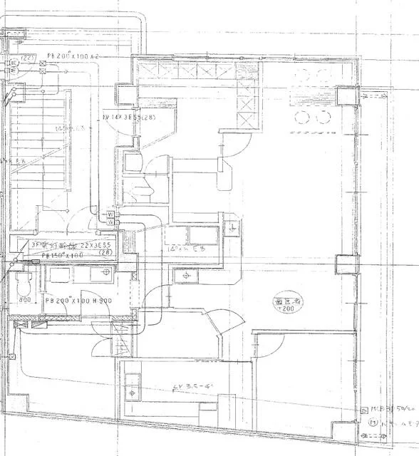
狭山ヶ丘の居抜き店舗の平面図

ログイン後に

物件情報の全てがご覧いただけます。

会員登録(無料)
狭山ヶ丘の居抜き店舗の外観
狭山ヶ丘の居抜き店舗の平面図
賃料

198,000円(税込)

階数/面積

2F / 24.66坪 (81.55㎡)

敷金・保証金

3ヶ月分

造作代金

相談

飲食条件

飲食不可

物件タイプ/現業態

居抜き / 歯科

※会員限定の
情報
ございます。

会員限定の情報がございます。

会員登録(無料)をしていただくと、 物件詳細、物件資料のダウンロード、地図での立地確認など 会員限定の公開情報を閲覧・取得できるようになります。

会員登録(無料)

西武池袋線『狭山ヶ丘駅』徒歩10分、歯科医院居抜き物件のご案内です。視認性良好な角地です。周辺は住宅街で地域密着型の営業に最適なエリアです。諸条件等、お気軽にお問合せください。

物件概要

会員登録(無料)をすることで
物件情報の全てがご覧いただけます。

会員登録(無料)をしていただくと、他社には出回っていない物件情報の収集、
非会員の方には閲覧できない詳細情報、物件資料のダウンロード、
地図での立地確認など会員限定公開情報を閲覧・取得できるようになります。

会員登録(無料)

地図

会員登録後にご覧いただけます。

会員登録(無料)
×
区分
新着・未公開物件情報

登録で 会員規約プライバシーポリシー に同意したものとします。

※必須

会員登録(無料)
物件詳細や公開情報がご覧になれます!