中野区鷺宮にある2階のスケルトン貸店舗・テナント物件のご案内です。

ゲスト

営業時間:9:30~18:30(土日・祝日を除く)

ゲスト

中野区鷺宮にある2階のスケルトン貸店舗・テナント物件のご案内です。

居抜き市場トップ 居抜き物件、貸店舗を探す 西武新宿線 , 中野区 中野区鷺宮にある2階のスケルトン貸店舗・テナント物件詳細

西武新宿線

鷺ノ宮駅

徒歩1

所在地

中野区鷺宮・・・詳細は

鷺ノ宮のスケルトン物件の外観
貸店舗(スケルトン)の内装

ログイン後に

物件情報の全てがご覧いただけます。

会員登録(無料)
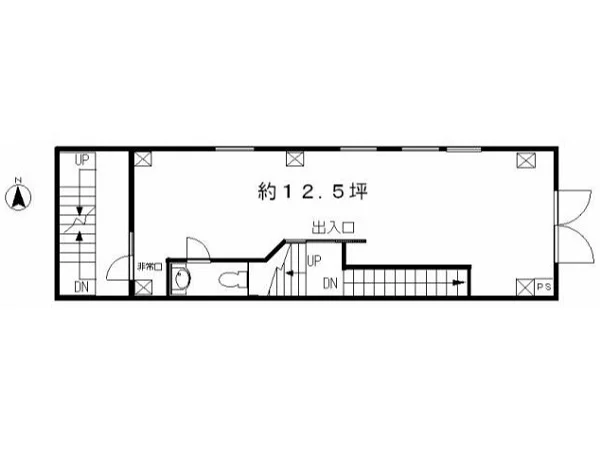
貸店舗(スケルトン)の平面図

ログイン後に

物件情報の全てがご覧いただけます。

会員登録(無料)
鷺ノ宮のスケルトン物件の外観
貸店舗(スケルトン)の内装
貸店舗(スケルトン)の平面図
賃料

165,000円(税込)

階数/面積

2F / 12.5坪 (41㎡)

敷金・保証金

50万円

飲食条件

軽飲食可

物件タイプ/現業態

スケルトン

※会員限定の
情報
ございます。

会員限定の情報がございます。

会員登録(無料)をしていただくと、 物件詳細、物件資料のダウンロード、地図での立地確認など 会員限定の公開情報を閲覧・取得できるようになります。

会員登録(無料)

西武新宿線『鷺ノ宮駅』徒歩1分、駅北口から中杉通りに出てすぐの好立地から、軽飲食のご相談可能な貸テナントのご紹介です。鷺宮商明会に位置する建物2階店舗!直近ではマッサージ店が営業しており、現況での引き渡しとなります。ご検討の方はお気軽にお問合せください。

物件概要

会員登録(無料)をすることで
物件情報の全てがご覧いただけます。

会員登録(無料)をしていただくと、他社には出回っていない物件情報の収集、
非会員の方には閲覧できない詳細情報、物件資料のダウンロード、
地図での立地確認など会員限定公開情報を閲覧・取得できるようになります。

会員登録(無料)

地図

会員登録後にご覧いただけます。

会員登録(無料)
×
区分
新着・未公開物件情報

登録で 会員規約プライバシーポリシー に同意したものとします。

※必須

会員登録(無料)
物件詳細や公開情報がご覧になれます!