重飲食ができる行徳駅徒歩2分のスケルトン貸店舗・テナント物件のご案内です。

ゲスト

営業時間:9:30~18:30(土日・祝日を除く)

ゲスト

重飲食ができる行徳駅徒歩2分のスケルトン貸店舗・テナント物件のご案内です。

居抜き市場トップ 居抜き物件、貸店舗を探す 東京メトロ東西線 , 市川市 重飲食ができる行徳駅徒歩2分のスケルトン貸店舗・テナント物件詳細

東京メトロ東西線

行徳駅

徒歩2

所在地

市川市行徳駅前・・・詳細は

貸店舗(スケルトン)の外観
行徳のスケルトン物件の外観

ログイン後に

物件情報の全てがご覧いただけます。

会員登録(無料)
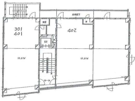
行徳のスケルトン店舗物件の平面図

ログイン後に

物件情報の全てがご覧いただけます。

会員登録(無料)
貸店舗(スケルトン)の外観
行徳のスケルトン物件の外観
行徳のスケルトン店舗物件の平面図
賃料

220,000円(税込)

階数/面積

4F / 16.93坪 (55.97㎡)

敷金・保証金

15ヶ月分

飲食条件

重飲食可

物件タイプ/現業態

スケルトン

※会員限定の
情報
ございます。

会員限定の情報がございます。

会員登録(無料)をしていただくと、 物件詳細、物件資料のダウンロード、地図での立地確認など 会員限定の公開情報を閲覧・取得できるようになります。

会員登録(無料)

東京メトロ東西線『行徳駅』徒歩2分。駅周辺には24時間営業のスーパーや、地元の方に愛される商店街があり、昼間から多くの人で賑わっています。また、公園の数も多く、ファミリー層が多いエリアです。商店街入口すぐ横のビルの為、視認性も高い物件となっております。重飲食のご相談も可能となっておりますので、お気軽にお問い合わせください。

物件概要

会員登録(無料)をすることで
物件情報の全てがご覧いただけます。

会員登録(無料)をしていただくと、他社には出回っていない物件情報の収集、
非会員の方には閲覧できない詳細情報、物件資料のダウンロード、
地図での立地確認など会員限定公開情報を閲覧・取得できるようになります。

会員登録(無料)

地図

会員登録後にご覧いただけます。

会員登録(無料)
×
区分
新着・未公開物件情報

登録で 会員規約プライバシーポリシー に同意したものとします。

※必須

会員登録(無料)
物件詳細や公開情報がご覧になれます!