大宮駅徒歩3分のスケルトン物件のご案内です。

ゲスト

営業時間:9:30~18:30(土日・祝日を除く)

ゲスト

大宮駅徒歩3分のスケルトン物件のご案内です。

居抜き市場トップ 居抜き物件、貸店舗を探す JR埼京線 , さいたま市大宮区 大宮駅徒歩3分のスケルトン物件情報

JR埼京線

大宮駅

徒歩3

所在地

さいたま市大宮区宮町・・・詳細は

大宮のスケルトン物件の内装
大宮のスケルトン店舗物件の内装

ログイン後に

物件情報の全てがご覧いただけます。

会員登録(無料)
大宮のスケルトン物件の内装

ログイン後に

物件情報の全てがご覧いただけます。

会員登録(無料)
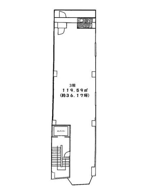
大宮のスケルトン店舗物件の平面図

ログイン後に

物件情報の全てがご覧いただけます。

会員登録(無料)
大宮のスケルトン店舗物件の外観

ログイン後に

物件情報の全てがご覧いただけます。

会員登録(無料)
大宮のスケルトン物件の内装
大宮のスケルトン店舗物件の内装
大宮のスケルトン物件の内装
大宮のスケルトン店舗物件の平面図
大宮のスケルトン店舗物件の外観
賃料

636,592円(税込)

階数/面積

3F / 36.17坪 (119.59㎡)

敷金・保証金

650万円

飲食条件

飲食可

物件タイプ/現業態

スケルトン

※会員限定の
情報
ございます。

会員限定の情報がございます。

会員登録(無料)をしていただくと、 物件詳細、物件資料のダウンロード、地図での立地確認など 会員限定の公開情報を閲覧・取得できるようになります。

会員登録(無料)

複数路線利用可能『大宮駅』東口から徒歩3分!好立地な飲食店相談可能な貸テナントのご紹介です!直近は居酒屋が営業していました。物販・クリニック等歓迎!諸条件等、お気軽にお問合せください。

物件概要

会員登録(無料)をすることで
物件情報の全てがご覧いただけます。

会員登録(無料)をしていただくと、他社には出回っていない物件情報の収集、
非会員の方には閲覧できない詳細情報、物件資料のダウンロード、
地図での立地確認など会員限定公開情報を閲覧・取得できるようになります。

会員登録(無料)

地図

会員登録後にご覧いただけます。

会員登録(無料)
×
区分
新着・未公開物件情報

登録で 会員規約プライバシーポリシー に同意したものとします。

※必須

会員登録(無料)
物件詳細や公開情報がご覧になれます!