居抜き物件で重飲食ができる1階路面の店舗のご案内です。

ゲスト

営業時間:9:30~18:30(土日・祝日を除く)

ゲスト

居抜き物件で重飲食ができる1階路面の店舗のご案内です。

居抜き市場トップ 居抜き物件、貸店舗を探す 東京メトロ東西線 , 市川市 居抜き物件で重飲食ができる1階路面の店舗情報

東京メトロ東西線

行徳駅

徒歩4

所在地

市川市行徳駅前・・・詳細は

居酒屋の居抜き物件の外観
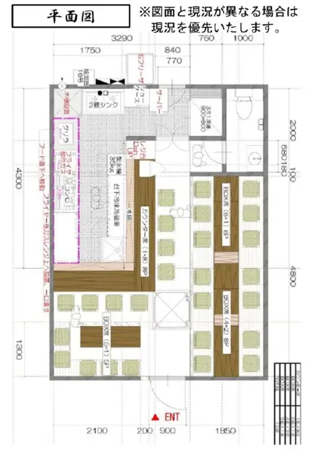
居酒屋の居抜き物件の平面図

ログイン後に

物件情報の全てがご覧いただけます。

会員登録(無料)
行徳の居酒屋居抜きの地図

ログイン後に

物件情報の全てがご覧いただけます。

会員登録(無料)
居酒屋の居抜き物件の外観
居酒屋の居抜き物件の平面図
行徳の居酒屋居抜きの地図
賃料

262,900円(税込)

階数/面積

1F / 12坪 (39.66㎡)

敷金・保証金

10ヶ月分

造作代金

無償譲渡

飲食条件

重飲食可

物件タイプ/現業態

居抜き / 居酒屋

※会員限定の
情報
ございます。

会員限定の情報がございます。

会員登録(無料)をしていただくと、 物件詳細、物件資料のダウンロード、地図での立地確認など 会員限定の公開情報を閲覧・取得できるようになります。

会員登録(無料)
  • 路面店

東京メトロ『行徳駅』徒歩3分!行徳駅南口一番街商店街から、韓国居酒屋居抜き物件のご紹介です。多くの飲食店が立ち並ぶ南中央商店街沿い1階路面店!店内はL字カウンター・メインのレイアウトで、約12坪のコンパクトな店舗です。諸条件等、お気軽にお問合せください。

物件概要

会員登録(無料)をすることで
物件情報の全てがご覧いただけます。

会員登録(無料)をしていただくと、他社には出回っていない物件情報の収集、
非会員の方には閲覧できない詳細情報、物件資料のダウンロード、
地図での立地確認など会員限定公開情報を閲覧・取得できるようになります。

会員登録(無料)

地図

会員登録後にご覧いただけます。

会員登録(無料)
×
区分
新着・未公開物件情報

登録で 会員規約プライバシーポリシー に同意したものとします。

※必須

会員登録(無料)
物件詳細や公開情報がご覧になれます!