広尾駅徒歩2分のエステ居抜き物件のご案内です。

ゲスト

営業時間:9:30~18:30(土日・祝日を除く)

ゲスト

広尾駅徒歩2分のエステ居抜き物件のご案内です。

居抜き市場トップ 居抜き物件、貸店舗を探す 東京メトロ日比谷線 , 渋谷区 広尾駅徒歩2分のエステ居抜き物件情報

東京メトロ日比谷線

広尾駅

徒歩2

所在地

渋谷区広尾・・・詳細は

エステの居抜き物件の内装
エステの居抜き物件の内装

ログイン後に

物件情報の全てがご覧いただけます。

会員登録(無料)
エステの居抜き物件の外観

ログイン後に

物件情報の全てがご覧いただけます。

会員登録(無料)
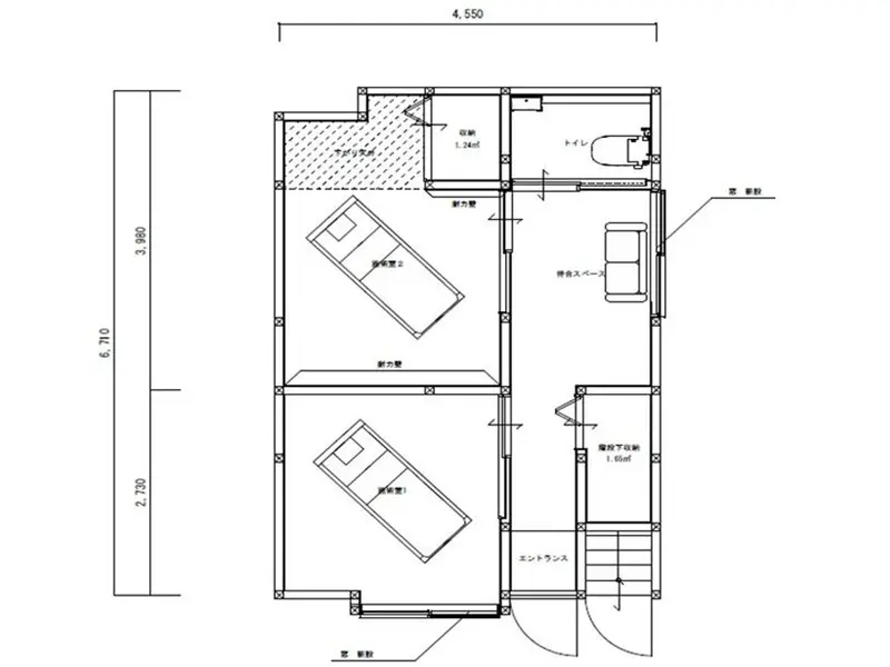
エステの居抜き物件の平面図

ログイン後に

物件情報の全てがご覧いただけます。

会員登録(無料)
エステの居抜き物件の内装
エステの居抜き物件の内装
エステの居抜き物件の外観
エステの居抜き物件の平面図
賃料

380,000円(税込)

階数/面積

1F / 8.49坪 (28.05㎡)

敷金・保証金

6ヶ月分

造作代金

相談

飲食条件

飲食不可

物件タイプ/現業態

居抜き / エステ

※会員限定の
情報
ございます。

会員限定の情報がございます。

会員登録(無料)をしていただくと、 物件詳細、物件資料のダウンロード、地図での立地確認など 会員限定の公開情報を閲覧・取得できるようになります。

会員登録(無料)

東京メトロ日比谷線『広尾駅』徒歩2分、美容サロンや整体、マッサージ店におすすめな居抜き物件のご紹介です。広尾散歩通りからすぐの路面店。メイン通りから一本入った落ち着いたエリアです。以前は整体院が営業しており、個室が2部屋ございます。諸条件等、お気軽にお問合せください。

物件概要

会員登録(無料)をすることで
物件情報の全てがご覧いただけます。

会員登録(無料)をしていただくと、他社には出回っていない物件情報の収集、
非会員の方には閲覧できない詳細情報、物件資料のダウンロード、
地図での立地確認など会員限定公開情報を閲覧・取得できるようになります。

会員登録(無料)

地図

会員登録後にご覧いただけます。

会員登録(無料)
×
区分
新着・未公開物件情報

登録で 会員規約プライバシーポリシー に同意したものとします。

※必須

会員登録(無料)
物件詳細や公開情報がご覧になれます!