道路に面した重飲食可能な1階の居抜き店舗のご案内です。

ゲスト

営業時間:9:30~18:30(土日・祝日を除く)

ゲスト

道路に面した重飲食可能な1階の居抜き店舗のご案内です。

居抜き市場トップ 居抜き物件、貸店舗を探す JR山手線 , 港区 道路に面した重飲食可能な1階の居抜き店舗詳細

JR山手線

浜松町駅

徒歩6

所在地

港区芝・・・詳細は

浜松町の居酒屋居抜きの外観
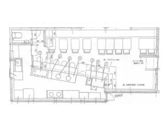
浜松町の居抜き店舗の平面図

ログイン後に

物件情報の全てがご覧いただけます。

会員登録(無料)
浜松町の居酒屋居抜きの外観
浜松町の居抜き店舗の平面図
賃料

352,000円(税込)

階数/面積

1F / 14坪 (46.28㎡)

敷金・保証金

10ヶ月分

造作代金

相談

飲食条件

重飲食可

物件タイプ/現業態

居抜き / 居酒屋

※会員限定の
情報
ございます。

会員限定の情報がございます。

会員登録(無料)をしていただくと、 物件詳細、物件資料のダウンロード、地図での立地確認など 会員限定の公開情報を閲覧・取得できるようになります。

会員登録(無料)
  • 路面店

JR山手線『浜松町駅』徒歩6分、居酒屋居抜き物件のご紹介です。店内はテーブル18席・カウンター5席のレイアウト。ラーメン店や中華料理店などの重飲食もご相談可能ですので、業種等、お気軽にお問合せください。

物件概要

会員登録(無料)をすることで
物件情報の全てがご覧いただけます。

会員登録(無料)をしていただくと、他社には出回っていない物件情報の収集、
非会員の方には閲覧できない詳細情報、物件資料のダウンロード、
地図での立地確認など会員限定公開情報を閲覧・取得できるようになります。

会員登録(無料)

地図

会員登録後にご覧いただけます。

会員登録(無料)
×
区分
新着・未公開物件情報

登録で 会員規約プライバシーポリシー に同意したものとします。

※必須

会員登録(無料)
物件詳細や公開情報がご覧になれます!