小田急相模原駅徒歩4分のBAR・ショットバー居抜き物件のご案内です。

ゲスト

営業時間:9:30~18:30(土日・祝日を除く)

ゲスト

小田急相模原駅徒歩4分のBAR・ショットバー居抜き物件のご案内です。

居抜き市場トップ 居抜き物件、貸店舗を探す 小田急小田原線 , 相模原市南区 小田急相模原駅徒歩4分のBAR・ショットバー居抜き物件情報

小田急小田原線

小田急相模原駅

徒歩4

所在地

相模原市南区相南・・・詳細は

BAR・ショットバーの居抜き物件の内装
BAR・ショットバーの居抜き物件の内装

ログイン後に

物件情報の全てがご覧いただけます。

会員登録(無料)
小田急相模原の居抜き店舗の内装

ログイン後に

物件情報の全てがご覧いただけます。

会員登録(無料)
小田急相模原のBAR・ショットバー居抜きの外観

ログイン後に

物件情報の全てがご覧いただけます。

会員登録(無料)
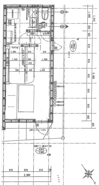
小田急相模原の居抜き店舗の平面図

ログイン後に

物件情報の全てがご覧いただけます。

会員登録(無料)
BAR・ショットバーの居抜き物件の内装
BAR・ショットバーの居抜き物件の内装
小田急相模原の居抜き店舗の内装
小田急相模原のBAR・ショットバー居抜きの外観
小田急相模原の居抜き店舗の平面図
賃料

165,000円(税込)

階数/面積

1F / 6.07坪 (20.08㎡)

敷金・保証金

3ヶ月分

造作代金

相談

飲食条件

飲食可

物件タイプ/現業態

居抜き / BAR・ショットバー

※会員限定の
情報
ございます。

会員限定の情報がございます。

会員登録(無料)をしていただくと、 物件詳細、物件資料のダウンロード、地図での立地確認など 会員限定の公開情報を閲覧・取得できるようになります。

会員登録(無料)

小田急小田原線『小田急相模原駅』徒歩4分、バー居抜き物件のご紹介です。カウンター席メインの小箱物件。新規開業をお考えの方にもおすすめです。駅と住宅街の中間に位置しており、地域住民のリピーター獲得が期待できます。

物件概要

会員登録(無料)をすることで
物件情報の全てがご覧いただけます。

会員登録(無料)をしていただくと、他社には出回っていない物件情報の収集、
非会員の方には閲覧できない詳細情報、物件資料のダウンロード、
地図での立地確認など会員限定公開情報を閲覧・取得できるようになります。

会員登録(無料)

地図

会員登録後にご覧いただけます。

会員登録(無料)
×
区分
新着・未公開物件情報

登録で 会員規約プライバシーポリシー に同意したものとします。

※必須

会員登録(無料)
物件詳細や公開情報がご覧になれます!