京成高砂駅、1階路面の事務所仕様の店舗物件のご案内です。

ゲスト

営業時間:9:30~18:30(土日・祝日を除く)

ゲスト

京成高砂駅、1階路面の事務所仕様の店舗物件のご案内です。

居抜き市場トップ 居抜き物件、貸店舗を探す 京成金町線 , 葛飾区 京成高砂駅、1階路面の事務所仕様の店舗物件情報

京成金町線

京成高砂駅

徒歩1

所在地

葛飾区高砂・・・詳細は

京成高砂の事務所仕様店舗物件の外観
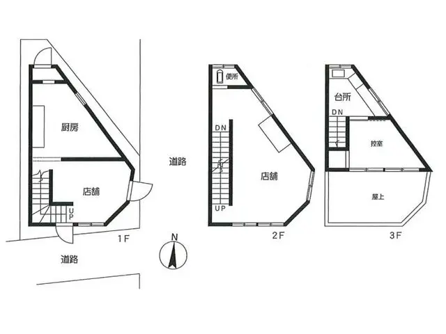
京成高砂の事務所仕様店舗物件の平面図

ログイン後に

物件情報の全てがご覧いただけます。

会員登録(無料)
京成高砂の事務所仕様店舗物件の外観
京成高砂の事務所仕様店舗物件の平面図
賃料

230,000円(税込)

階数/面積

1F~3F / 19.12坪 (63.2㎡)

敷金・保証金

3ヶ月分

飲食条件

飲食可

物件タイプ/現業態

事務所仕様

※会員限定の
情報
ございます。

会員限定の情報がございます。

会員登録(無料)をしていただくと、 物件詳細、物件資料のダウンロード、地図での立地確認など 会員限定の公開情報を閲覧・取得できるようになります。

会員登録(無料)
  • 路面店

京成金町線『京成高砂駅』徒歩1分、飲食店相談可能な貸店舗のご紹介です。直近では洋食店が営業していた店舗ですが、動産物撤去済みで現況でのお引き渡しとなります。視認性良好な角地店舗!諸条件等、お気軽にお問合せください。

物件概要

会員登録(無料)をすることで
物件情報の全てがご覧いただけます。

会員登録(無料)をしていただくと、他社には出回っていない物件情報の収集、
非会員の方には閲覧できない詳細情報、物件資料のダウンロード、
地図での立地確認など会員限定公開情報を閲覧・取得できるようになります。

会員登録(無料)

地図

会員登録後にご覧いただけます。

会員登録(無料)
×
区分
新着・未公開物件情報

登録で 会員規約プライバシーポリシー に同意したものとします。

※必須

会員登録(無料)
物件詳細や公開情報がご覧になれます!