渋谷駅徒歩11分のスケルトン店舗物件のご案内です。

ゲスト

営業時間:9:30~18:30(土日・祝日を除く)

ゲスト

渋谷駅徒歩11分のスケルトン店舗物件のご案内です。

居抜き市場トップ 居抜き物件、貸店舗を探す JR山手線 , 渋谷区 渋谷駅徒歩11分のスケルトン店舗物件詳細

JR山手線

渋谷駅

徒歩11

所在地

渋谷区東・・・詳細は

渋谷のスケルトン店舗物件の外観
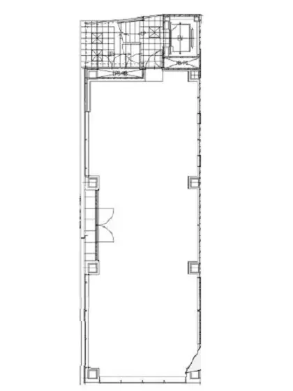
渋谷のスケルトン店舗物件の平面図

ログイン後に

物件情報の全てがご覧いただけます。

会員登録(無料)
渋谷のスケルトン店舗物件の外観
渋谷のスケルトン店舗物件の平面図
賃料

1,320,000円(税込)

階数/面積

1F / 29.32坪 (96.91㎡)

敷金・保証金

8ヶ月分

飲食条件

飲食可(重飲食不可)

物件タイプ/現業態

スケルトン

※会員限定の
情報
ございます。

会員限定の情報がございます。

会員登録(無料)をしていただくと、 物件詳細、物件資料のダウンロード、地図での立地確認など 会員限定の公開情報を閲覧・取得できるようになります。

会員登録(無料)

JR山手線『渋谷駅』徒歩11分、飲食店ご相談可能な貸店舗のご案内です。明治通りに面する、視認性良好な1階路面店。周辺はオフィスビルが立ち並んでいるため、ビジネスパーソンを中心とした集客が期待できます。諸条件等、お気軽にお問い合わせください。

物件概要

会員登録(無料)をすることで
物件情報の全てがご覧いただけます。

会員登録(無料)をしていただくと、他社には出回っていない物件情報の収集、
非会員の方には閲覧できない詳細情報、物件資料のダウンロード、
地図での立地確認など会員限定公開情報を閲覧・取得できるようになります。

会員登録(無料)

地図

会員登録後にご覧いただけます。

会員登録(無料)
×
区分
新着・未公開物件情報

登録で 会員規約プライバシーポリシー に同意したものとします。

※必須

会員登録(無料)
物件詳細や公開情報がご覧になれます!