八王子市三崎町にある2階のガールズバー居抜き物件のご案内です。

ゲスト

営業時間:9:30~18:30(土日・祝日を除く)

ゲスト

八王子市三崎町にある2階のガールズバー居抜き物件のご案内です。

居抜き市場トップ 居抜き物件、貸店舗を探す JR横浜線 , 八王子市 八王子市三崎町にある2階のガールズバー居抜き物件詳細

JR横浜線

八王子駅

徒歩7

所在地

八王子市三崎町・・・詳細は

八王子の居抜き店舗の内装
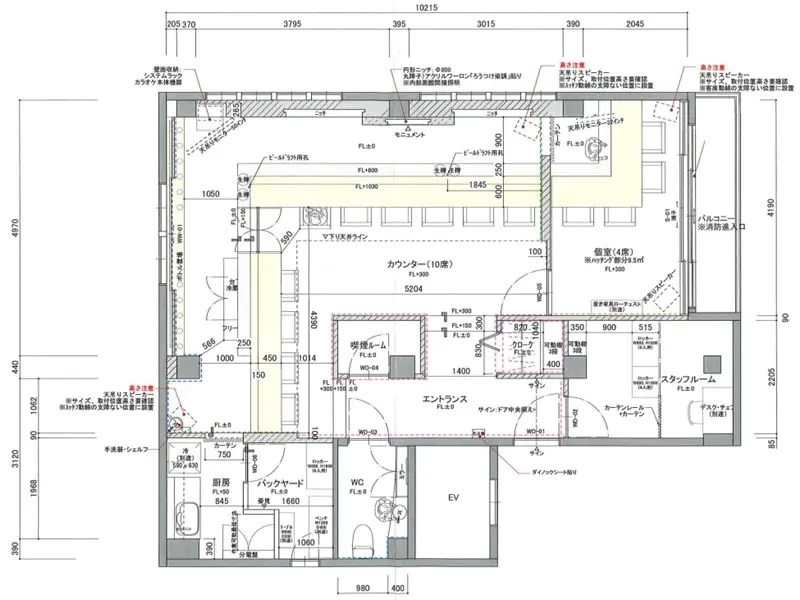
八王子のガールズバー居抜きの平面図

ログイン後に

物件情報の全てがご覧いただけます。

会員登録(無料)
八王子の居抜き店舗の内装
八王子のガールズバー居抜きの平面図
賃料

179,000円(税込)

階数/面積

2F / 25.23坪 (83.4㎡)

敷金・保証金

5ヶ月分

造作代金

5,500,000円(税込)

飲食条件

飲食可

物件タイプ/現業態

居抜き / ガールズバー

※会員限定の
情報
ございます。

会員限定の情報がございます。

会員登録(無料)をしていただくと、 物件詳細、物件資料のダウンロード、地図での立地確認など 会員限定の公開情報を閲覧・取得できるようになります。

会員登録(無料)

JR『八王子駅』徒歩7分、ガールズバー居抜き物件のご紹介です。約25.22坪の店内はカウンター席メインの約18席レイアウト!重厚感のある大理石調のロングカウンターが目を引く、上質な和モダンの内装です。八王子エリアの中でも特に繁華街や商業施設が多く集まる「三崎町交差点」の近くに位置しており、夜間帯まで集客が期待できるエリアです。

物件概要

会員登録(無料)をすることで
物件情報の全てがご覧いただけます。

会員登録(無料)をしていただくと、他社には出回っていない物件情報の収集、
非会員の方には閲覧できない詳細情報、物件資料のダウンロード、
地図での立地確認など会員限定公開情報を閲覧・取得できるようになります。

会員登録(無料)

地図

会員登録後にご覧いただけます。

会員登録(無料)
×
区分
新着・未公開物件情報

登録で 会員規約プライバシーポリシー に同意したものとします。

※必須

会員登録(無料)
物件詳細や公開情報がご覧になれます!