京成船橋駅徒歩5分の自由に造作が可能なスケルトン物件のご案内です。

ゲスト

営業時間:9:30~18:30(土日・祝日を除く)

ゲスト

京成船橋駅徒歩5分の自由に造作が可能なスケルトン物件のご案内です。

居抜き市場トップ 居抜き物件、貸店舗を探す 京成本線 , 船橋市 京成船橋駅徒歩5分の自由に造作が可能なスケルトン物件詳細

京成本線

京成船橋駅

徒歩5

所在地

船橋市本町・・・詳細は

貸店舗(スケルトン)の外観
京成船橋のスケルトン物件の内装

ログイン後に

物件情報の全てがご覧いただけます。

会員登録(無料)
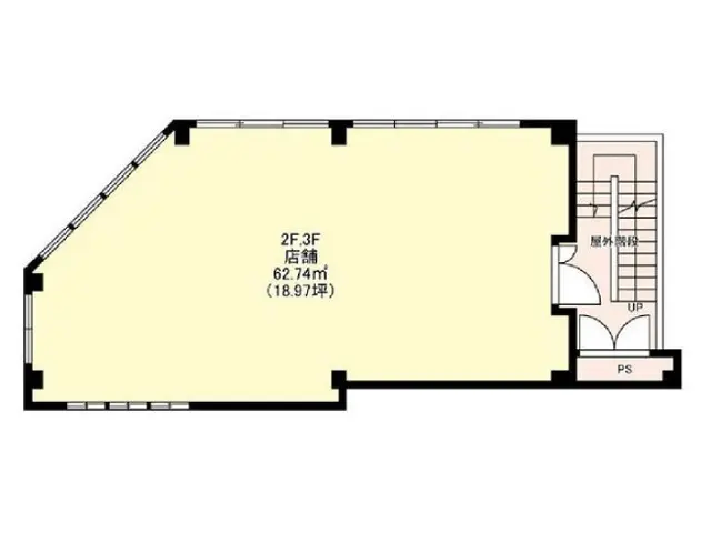
京成船橋のスケルトン物件の平面図

ログイン後に

物件情報の全てがご覧いただけます。

会員登録(無料)
貸店舗(スケルトン)の外観
京成船橋のスケルトン物件の内装
京成船橋のスケルトン物件の平面図
賃料

412,500円(税込)

階数/面積

3F / 18.98坪 (62.74㎡)

敷金・保証金

3ヶ月分

飲食条件

飲食可

物件タイプ/現業態

スケルトン

※会員限定の
情報
ございます。

会員限定の情報がございます。

会員登録(無料)をしていただくと、 物件詳細、物件資料のダウンロード、地図での立地確認など 会員限定の公開情報を閲覧・取得できるようになります。

会員登録(無料)

京成本線『京成船橋駅』徒歩5分、飲食店ご相談可能な貸店舗のご案内です。角地に位置する3階テナント。周辺は住宅街が広がっているため、リピーター獲得が期待できます。諸条件等、お気軽にお問い合わせください。

物件概要

会員登録(無料)をすることで
物件情報の全てがご覧いただけます。

会員登録(無料)をしていただくと、他社には出回っていない物件情報の収集、
非会員の方には閲覧できない詳細情報、物件資料のダウンロード、
地図での立地確認など会員限定公開情報を閲覧・取得できるようになります。

会員登録(無料)

地図

会員登録後にご覧いただけます。

会員登録(無料)
×
区分
新着・未公開物件情報

登録で 会員規約プライバシーポリシー に同意したものとします。

※必須

会員登録(無料)
物件詳細や公開情報がご覧になれます!