赤羽駅徒歩5分のBAR・ショットバー居抜き物件のご案内です。

ゲスト

営業時間:9:30~18:30(土日・祝日を除く)

ゲスト

赤羽駅徒歩5分のBAR・ショットバー居抜き物件のご案内です。

居抜き市場トップ 居抜き物件、貸店舗を探す JR京浜東北・根岸線 , 北区 赤羽駅徒歩5分のBAR・ショットバー居抜き物件情報

JR京浜東北・根岸線

赤羽駅

徒歩5

所在地

北区赤羽・・・詳細は

赤羽のBAR・ショットバー居抜きの内装
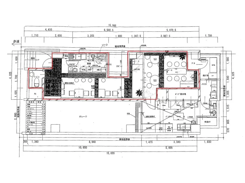
BAR・ショットバーの居抜き物件の平面図

ログイン後に

物件情報の全てがご覧いただけます。

会員登録(無料)
赤羽のBAR・ショットバー居抜きのエントランス

ログイン後に

物件情報の全てがご覧いただけます。

会員登録(無料)
赤羽のBAR・ショットバー居抜きの地図

ログイン後に

物件情報の全てがご覧いただけます。

会員登録(無料)
赤羽のBAR・ショットバー居抜きの内装
BAR・ショットバーの居抜き物件の平面図
赤羽のBAR・ショットバー居抜きのエントランス
赤羽のBAR・ショットバー居抜きの地図
賃料

316,800円(税込)

階数/面積

-1F / 17.6坪 (58.18㎡)

敷金・保証金

10ヶ月分

造作代金

1,500,000円(税込)

飲食条件

飲食可

物件タイプ/現業態

居抜き / BAR・ショットバー

※会員限定の
情報
ございます。

会員限定の情報がございます。

会員登録(無料)をしていただくと、 物件詳細、物件資料のダウンロード、地図での立地確認など 会員限定の公開情報を閲覧・取得できるようになります。

会員登録(無料)

★バー居抜き★
蕎麦屋の出店履歴有!バー以外の業態も歓迎!
東本通り沿い!専用階段で1階に看板出せます!

【インフラ】電灯:有    動力:有    ガス:6号メーター(最大10号メーター設置可)    水道:20mm
【厨房排気】無
【空調】有 / 業務用
【グリスト】無
【席数】カウンター7席 テーブル27席 
【トイレ】有 /洋式
【営業年数】約7年
【不可業態】無し
【営業時間制限】無し  
【間口】約1.6m
【天高】約2.1m
【引渡状態】居抜き
※記載の店舗情報は正確性を保証するものではございません。

物件概要

会員登録(無料)をすることで
物件情報の全てがご覧いただけます。

会員登録(無料)をしていただくと、他社には出回っていない物件情報の収集、
非会員の方には閲覧できない詳細情報、物件資料のダウンロード、
地図での立地確認など会員限定公開情報を閲覧・取得できるようになります。

会員登録(無料)

地図

会員登録後にご覧いただけます。

会員登録(無料)
×
区分
新着・未公開物件情報

登録で 会員規約プライバシーポリシー に同意したものとします。

※必須

会員登録(無料)
物件詳細や公開情報がご覧になれます!