新宿駅徒歩1分の医院居抜き物件のご案内です。

ゲスト

営業時間:9:30~18:30(土日・祝日を除く)

ゲスト

新宿駅徒歩1分の医院居抜き物件のご案内です。

居抜き市場トップ 居抜き物件、貸店舗を探す 京王線 , 新宿区 新宿駅徒歩1分の医院居抜き物件情報

京王線

新宿駅

徒歩1

所在地

新宿区西新宿・・・詳細は

新宿の医院居抜きのエントランス
新宿の居抜き店舗の外観

ログイン後に

物件情報の全てがご覧いただけます。

会員登録(無料)
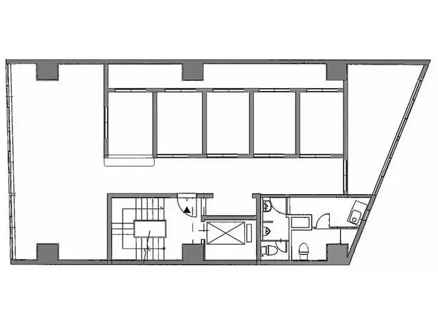
新宿の医院居抜きの平面図

ログイン後に

物件情報の全てがご覧いただけます。

会員登録(無料)
新宿の医院居抜きのエントランス
新宿の居抜き店舗の外観
新宿の医院居抜きの平面図
賃料

748,000円(税込)

階数/面積

2F / 40坪 (132.24㎡)

敷金・保証金

10ヶ月分

造作代金

相談

飲食条件

飲食不可

物件タイプ/現業態

居抜き / 医院

※会員限定の
情報
ございます。

会員限定の情報がございます。

会員登録(無料)をしていただくと、 物件詳細、物件資料のダウンロード、地図での立地確認など 会員限定の公開情報を閲覧・取得できるようになります。

会員登録(無料)

京王線『新宿駅』徒歩1分の好立地!クリニック居抜き物件のご紹介です。甲州街道に面したビル2階テナント!オフィス街のため建物前は人通り多く、通勤動線上に位置しているためビジネスパーソンが通いやすい立地です。業種等、お気軽にお問合せください。

物件概要

会員登録(無料)をすることで
物件情報の全てがご覧いただけます。

会員登録(無料)をしていただくと、他社には出回っていない物件情報の収集、
非会員の方には閲覧できない詳細情報、物件資料のダウンロード、
地図での立地確認など会員限定公開情報を閲覧・取得できるようになります。

会員登録(無料)

地図

会員登録後にご覧いただけます。

会員登録(無料)
×
区分
新着・未公開物件情報

登録で 会員規約プライバシーポリシー に同意したものとします。

※必須

会員登録(無料)
物件詳細や公開情報がご覧になれます!