五反田駅徒歩3分の飲食店居抜き店舗のご案内です。

ゲスト

営業時間:9:30~18:30(土日・祝日を除く)

ゲスト

五反田駅徒歩3分の飲食店居抜き店舗のご案内です。

居抜き市場トップ 居抜き物件、貸店舗を探す JR山手線 , 品川区 五反田駅徒歩3分の飲食店居抜き店舗詳細

JR山手線

五反田駅

徒歩3

所在地

品川区東五反田・・・詳細は

スナック・パブの居抜き物件のエントランス
五反田の居抜き店舗の外観

ログイン後に

物件情報の全てがご覧いただけます。

会員登録(無料)
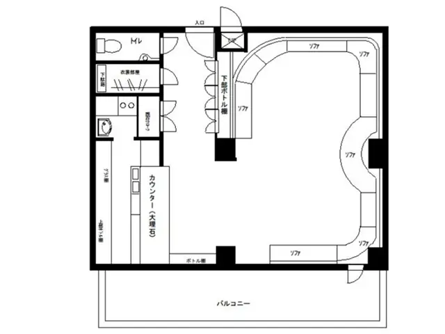
五反田のスナック・パブ居抜きの平面図

ログイン後に

物件情報の全てがご覧いただけます。

会員登録(無料)
スナック・パブの居抜き物件のエントランス
五反田の居抜き店舗の外観
五反田のスナック・パブ居抜きの平面図
賃料

396,000円(税込)

階数/面積

6F / 18.6坪 (61.49㎡)

敷金・保証金

250万円

造作代金

相談

飲食条件

飲食可

物件タイプ/現業態

居抜き / スナック・パブ

※会員限定の
情報
ございます。

会員限定の情報がございます。

会員登録(無料)をしていただくと、 物件詳細、物件資料のダウンロード、地図での立地確認など 会員限定の公開情報を閲覧・取得できるようになります。

会員登録(無料)

JR山手線『五反田駅』徒歩3分、スナック居抜き物件のご紹介です。駅からアクセス良好なソシアルビルの最上階テナント!他区画でも類似業態が多数盛業中で、夜間帯まで集客が期待できます。諸条件等、お気軽にお問合せください。

物件概要

会員登録(無料)をすることで
物件情報の全てがご覧いただけます。

会員登録(無料)をしていただくと、他社には出回っていない物件情報の収集、
非会員の方には閲覧できない詳細情報、物件資料のダウンロード、
地図での立地確認など会員限定公開情報を閲覧・取得できるようになります。

会員登録(無料)

地図

会員登録後にご覧いただけます。

会員登録(無料)
×
区分
新着・未公開物件情報

登録で 会員規約プライバシーポリシー に同意したものとします。

※必須

会員登録(無料)
物件詳細や公開情報がご覧になれます!