水道橋駅徒歩2分のスケルトン物件のご案内です。

ゲスト

営業時間:9:30~18:30(土日・祝日を除く)

ゲスト

水道橋駅徒歩2分のスケルトン物件のご案内です。

居抜き市場トップ 居抜き物件、貸店舗を探す JR中央・総武線 , 千代田区 水道橋駅徒歩2分のスケルトン物件情報

JR中央・総武線

水道橋駅

徒歩2

所在地

千代田区神田三崎町・・・詳細は

貸店舗(スケルトン)の外観
貸店舗(スケルトン)の外観

ログイン後に

物件情報の全てがご覧いただけます。

会員登録(無料)
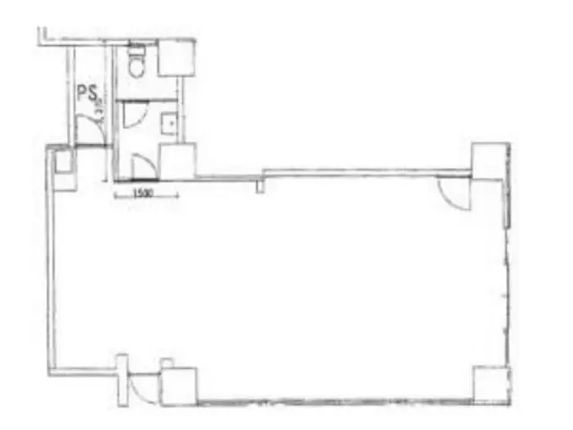
水道橋のスケルトン店舗物件の平面図

ログイン後に

物件情報の全てがご覧いただけます。

会員登録(無料)
貸店舗(スケルトン)の外観
貸店舗(スケルトン)の外観
水道橋のスケルトン店舗物件の平面図
賃料

600,700円(税込)

階数/面積

1F / 20.46坪 (67.65㎡)

敷金・保証金

8ヶ月分

飲食条件

軽飲食可

物件タイプ/現業態

スケルトン

※会員限定の
情報
ございます。

会員限定の情報がございます。

会員登録(無料)をしていただくと、 物件詳細、物件資料のダウンロード、地図での立地確認など 会員限定の公開情報を閲覧・取得できるようになります。

会員登録(無料)

JR総武線『水道橋駅』徒歩2分、軽飲食店ご相談可能な貸店舗のご案内です。「水道橋西通り」沿い角地に建つビルの1階、視認性良好です!人通りの多い活気のある場所です。飲食は軽飲食のみご相談となりますが、業種等お気軽にご相談ください。

物件概要

会員登録(無料)をすることで
物件情報の全てがご覧いただけます。

会員登録(無料)をしていただくと、他社には出回っていない物件情報の収集、
非会員の方には閲覧できない詳細情報、物件資料のダウンロード、
地図での立地確認など会員限定公開情報を閲覧・取得できるようになります。

会員登録(無料)

地図

会員登録後にご覧いただけます。

会員登録(無料)
×
区分
新着・未公開物件情報

登録で 会員規約プライバシーポリシー に同意したものとします。

※必須

会員登録(無料)
物件詳細や公開情報がご覧になれます!