光が丘駅徒歩12分の医院居抜き物件のご案内です。

ゲスト

営業時間:9:30~18:30(土日・祝日を除く)

ゲスト

光が丘駅徒歩12分の医院居抜き物件のご案内です。

居抜き市場トップ 居抜き物件、貸店舗を探す 都営大江戸線 , 練馬区 光が丘駅徒歩12分の医院居抜き物件情報

都営大江戸線

光が丘駅

徒歩12

所在地

練馬区田柄・・・詳細は

医院の居抜き物件の内装
光が丘の居抜き店舗の内装

ログイン後に

物件情報の全てがご覧いただけます。

会員登録(無料)
光が丘の医院居抜きの内装

ログイン後に

物件情報の全てがご覧いただけます。

会員登録(無料)
光が丘の医院居抜きの内装

ログイン後に

物件情報の全てがご覧いただけます。

会員登録(無料)
医院の居抜き物件の内装

ログイン後に

物件情報の全てがご覧いただけます。

会員登録(無料)
光が丘の居抜き店舗の内装

ログイン後に

物件情報の全てがご覧いただけます。

会員登録(無料)
光が丘の居抜き店舗の内装

ログイン後に

物件情報の全てがご覧いただけます。

会員登録(無料)
医院の居抜き物件の外観

ログイン後に

物件情報の全てがご覧いただけます。

会員登録(無料)
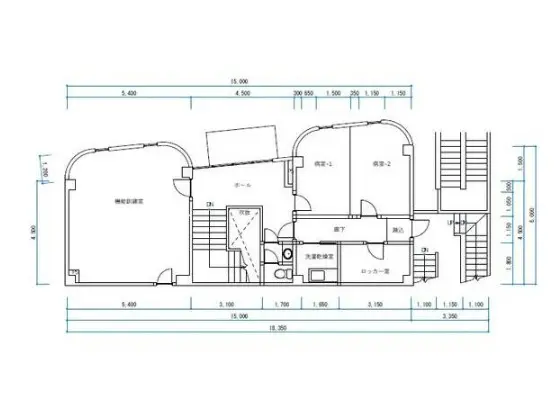
光が丘の医院居抜きの平面図

ログイン後に

物件情報の全てがご覧いただけます。

会員登録(無料)
光が丘の医院居抜きの平面図

ログイン後に

物件情報の全てがご覧いただけます。

会員登録(無料)
医院の居抜き物件の内装
光が丘の居抜き店舗の内装
光が丘の医院居抜きの内装
光が丘の医院居抜きの内装
医院の居抜き物件の内装
光が丘の居抜き店舗の内装
光が丘の居抜き店舗の内装
医院の居抜き物件の外観
光が丘の医院居抜きの平面図
光が丘の医院居抜きの平面図
賃料

660,000円(税込)

階数/面積

1F~2F / 58.68坪 (194㎡)

敷金・保証金

396万円

造作代金

相談

飲食条件

飲食不可

物件タイプ/現業態

居抜き / 医院

※会員限定の
情報
ございます。

会員限定の情報がございます。

会員登録(無料)をしていただくと、 物件詳細、物件資料のダウンロード、地図での立地確認など 会員限定の公開情報を閲覧・取得できるようになります。

会員登録(無料)

都営大江戸線『光が丘駅』徒歩12分、整形外科居抜き物件のご紹介です。田柄通り沿いの視認性良好な店舗!バス通り沿いのため地域住民の方々が通いやすい立地です。諸条件等、お気軽にお問合せください。

物件概要

会員登録(無料)をすることで
物件情報の全てがご覧いただけます。

会員登録(無料)をしていただくと、他社には出回っていない物件情報の収集、
非会員の方には閲覧できない詳細情報、物件資料のダウンロード、
地図での立地確認など会員限定公開情報を閲覧・取得できるようになります。

会員登録(無料)

地図

会員登録後にご覧いただけます。

会員登録(無料)
×
区分
新着・未公開物件情報

登録で 会員規約プライバシーポリシー に同意したものとします。

※必須

会員登録(無料)
物件詳細や公開情報がご覧になれます!