世田谷区北沢にある2階のカフェ・喫茶店居抜き物件のご案内です。

ゲスト

営業時間:9:30~18:30(土日・祝日を除く)

ゲスト

世田谷区北沢にある2階のカフェ・喫茶店居抜き物件のご案内です。

居抜き市場トップ 居抜き物件、貸店舗を探す 小田急小田原線 , 世田谷区 世田谷区北沢にある2階のカフェ・喫茶店居抜き物件詳細

小田急小田原線

下北沢駅

徒歩4

所在地

世田谷区北沢・・・詳細は

下北沢のカフェ・喫茶店居抜きの内装
下北沢のカフェ・喫茶店居抜きの内装

ログイン後に

物件情報の全てがご覧いただけます。

会員登録(無料)
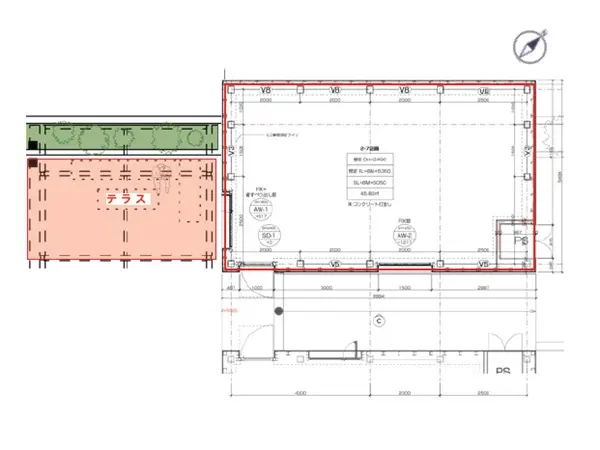
下北沢の居抜き店舗の平面図

ログイン後に

物件情報の全てがご覧いただけます。

会員登録(無料)
下北沢の居抜き店舗の外観

ログイン後に

物件情報の全てがご覧いただけます。

会員登録(無料)
下北沢のカフェ・喫茶店居抜きの内装
下北沢のカフェ・喫茶店居抜きの内装
下北沢の居抜き店舗の平面図
下北沢の居抜き店舗の外観
賃料

411,642円(税込)

階数/面積

2F / 13.86坪 (45.83㎡)

敷金・保証金

10ヶ月分

造作代金

1,650,000円(税込)

飲食条件

飲食可

物件タイプ/現業態

居抜き / カフェ・喫茶店

※会員限定の
情報
ございます。

会員限定の情報がございます。

会員登録(無料)をしていただくと、 物件詳細、物件資料のダウンロード、地図での立地確認など 会員限定の公開情報を閲覧・取得できるようになります。

会員登録(無料)

2路線利用可能な『下北沢駅』徒歩4分、カフェ居抜き物件のご紹介です。ハイセンスな店舗が集まる商業施設内2階テナント!カウンター席・テーブル席のあるおしゃれな店内です。東北沢との間に位置し、お洒落な大人が集う代々木上原・幡ヶ谷周辺の顧客層が日常的に訪れる注目エリアです。インバウンド需要も増加中で様々な客層の集客が期待できます。お問合せはお早目に!

物件概要

会員登録(無料)をすることで
物件情報の全てがご覧いただけます。

会員登録(無料)をしていただくと、他社には出回っていない物件情報の収集、
非会員の方には閲覧できない詳細情報、物件資料のダウンロード、
地図での立地確認など会員限定公開情報を閲覧・取得できるようになります。

会員登録(無料)

地図

会員登録後にご覧いただけます。

会員登録(無料)
×
区分
新着・未公開物件情報

登録で 会員規約プライバシーポリシー に同意したものとします。

※必須

会員登録(無料)
物件詳細や公開情報がご覧になれます!