大和駅徒歩12分の飲食店居抜き店舗のご案内です。

ゲスト

営業時間:9:30~18:30(土日・祝日を除く)

ゲスト

大和駅徒歩12分の飲食店居抜き店舗のご案内です。

居抜き市場トップ 居抜き物件、貸店舗を探す 小田急江ノ島線 , 大和市 大和駅徒歩12分の飲食店居抜き店舗詳細

小田急江ノ島線

大和駅

徒歩12

所在地

大和市深見・・・詳細は

定食屋の居抜き物件の外観
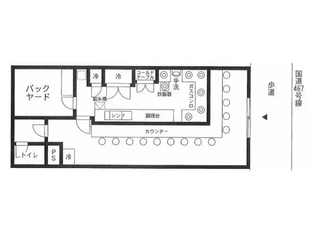
大和の居抜き店舗の平面図

ログイン後に

物件情報の全てがご覧いただけます。

会員登録(無料)
定食屋の居抜き物件の外観
大和の居抜き店舗の平面図
賃料

132,000円(税込)

階数/面積

1F / 15.65坪 (51.75㎡)

敷金・保証金

6ヶ月分

造作代金

500,000円(税込)

飲食条件

飲食可

物件タイプ/現業態

居抜き / 定食屋

※会員限定の
情報
ございます。

会員限定の情報がございます。

会員登録(無料)をしていただくと、 物件詳細、物件資料のダウンロード、地図での立地確認など 会員限定の公開情報を閲覧・取得できるようになります。

会員登録(無料)

小田急江ノ島線『大和駅』徒歩12分、カレー店居抜き物件のご紹介です。店内はカウンター席・テーブル席のレイアウトで、類似業態ご希望の方はスピーディーな開業が可能です。国道467号沿いの視認性良好な路面店!諸条件等、お気軽にお問合せください。

物件概要

会員登録(無料)をすることで
物件情報の全てがご覧いただけます。

会員登録(無料)をしていただくと、他社には出回っていない物件情報の収集、
非会員の方には閲覧できない詳細情報、物件資料のダウンロード、
地図での立地確認など会員限定公開情報を閲覧・取得できるようになります。

会員登録(無料)

地図

会員登録後にご覧いただけます。

会員登録(無料)
×
区分
新着・未公開物件情報

登録で 会員規約プライバシーポリシー に同意したものとします。

※必須

会員登録(無料)
物件詳細や公開情報がご覧になれます!