人形町駅、造作無償の1階イタリアン居抜き店舗のご案内です。

ゲスト

営業時間:9:30~18:30(土日・祝日を除く)

ゲスト

人形町駅、造作無償の1階イタリアン居抜き店舗のご案内です。

居抜き市場トップ 居抜き物件、貸店舗を探す 東京メトロ日比谷線 , 中央区 人形町駅、造作無償の1階イタリアン居抜き店舗情報

東京メトロ日比谷線

人形町駅

徒歩3

所在地

中央区日本橋堀留町・・・詳細は

人形町のイタリアン居抜きの内装
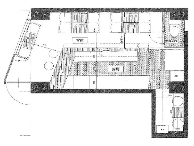
人形町のイタリアン居抜きの平面図

ログイン後に

物件情報の全てがご覧いただけます。

会員登録(無料)
イタリアンの居抜き物件の外観

ログイン後に

物件情報の全てがご覧いただけます。

会員登録(無料)
人形町のイタリアン居抜きの内装
人形町のイタリアン居抜きの平面図
イタリアンの居抜き物件の外観
賃料

297,000円(税込)

階数/面積

1F / 7.6坪 (25.11㎡)

敷金・保証金

10ヶ月分

造作代金

無償譲渡

飲食条件

飲食可(重飲食不可)

物件タイプ/現業態

居抜き / イタリアン

※会員限定の
情報
ございます。

会員限定の情報がございます。

会員登録(無料)をしていただくと、 物件詳細、物件資料のダウンロード、地図での立地確認など 会員限定の公開情報を閲覧・取得できるようになります。

会員登録(無料)

東京メトロ『人形町駅』から徒歩3分という好立地に、イタリアンレストランの居抜き物件が登場しました。通りからの視認性が高い1階路面店で、集客にも期待ができます。店内は、お一人様でも入りやすいカウンター4席と、グループ対応可能なテーブル8席というレイアウト。諸条件等、お気軽にお問合せください。

物件概要

会員登録(無料)をすることで
物件情報の全てがご覧いただけます。

会員登録(無料)をしていただくと、他社には出回っていない物件情報の収集、
非会員の方には閲覧できない詳細情報、物件資料のダウンロード、
地図での立地確認など会員限定公開情報を閲覧・取得できるようになります。

会員登録(無料)

地図

会員登録後にご覧いただけます。

会員登録(無料)
×
区分
新着・未公開物件情報

登録で 会員規約プライバシーポリシー に同意したものとします。

※必須

会員登録(無料)
物件詳細や公開情報がご覧になれます!