重飲食可能な渋谷区神南にある4階の居抜き物件のご案内です。

ゲスト

営業時間:9:30~18:30(土日・祝日を除く)

ゲスト

重飲食可能な渋谷区神南にある4階の居抜き物件のご案内です。

居抜き市場トップ 居抜き物件、貸店舗を探す 東京メトロ半蔵門線 , 渋谷区 重飲食可能な渋谷区神南にある4階の居抜き物件情報

東京メトロ半蔵門線

渋谷駅

徒歩3

所在地

渋谷区神南・・・詳細は

BAR・ショットバーの居抜き物件の内装
渋谷のBAR・ショットバー居抜きの内装

ログイン後に

物件情報の全てがご覧いただけます。

会員登録(無料)
渋谷の居抜き店舗の内装

ログイン後に

物件情報の全てがご覧いただけます。

会員登録(無料)
渋谷のBAR・ショットバー居抜きの外観

ログイン後に

物件情報の全てがご覧いただけます。

会員登録(無料)
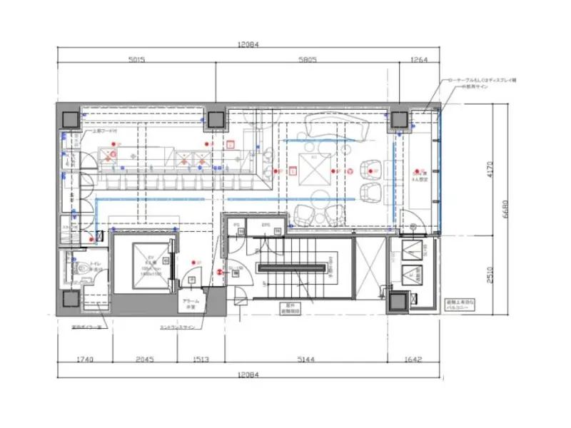
渋谷のBAR・ショットバー居抜きの平面図

ログイン後に

物件情報の全てがご覧いただけます。

会員登録(無料)
BAR・ショットバーの居抜き物件の内装
渋谷のBAR・ショットバー居抜きの内装
渋谷の居抜き店舗の内装
渋谷のBAR・ショットバー居抜きの外観
渋谷のBAR・ショットバー居抜きの平面図
賃料

700,000円(税込)

階数/面積

4F / 17.42坪 (57.59㎡)

敷金・保証金

6ヶ月分

造作代金

5,500,000円(税込)

飲食条件

重飲食可

物件タイプ/現業態

居抜き / BAR・ショットバー

※会員限定の
情報
ございます。

会員限定の情報がございます。

会員登録(無料)をしていただくと、 物件詳細、物件資料のダウンロード、地図での立地確認など 会員限定の公開情報を閲覧・取得できるようになります。

会員登録(無料)

【公園通り】複数路線利用可能『渋谷駅』最寄り、シーシャバー居抜き物件のご案内です。2022年にオープンし、スタイリッシュな内装は類似業態のお客様必見!エレベーターございます。諸条件等、お気軽にお問合せください。

物件概要

会員登録(無料)をすることで
物件情報の全てがご覧いただけます。

会員登録(無料)をしていただくと、他社には出回っていない物件情報の収集、
非会員の方には閲覧できない詳細情報、物件資料のダウンロード、
地図での立地確認など会員限定公開情報を閲覧・取得できるようになります。

会員登録(無料)

地図

会員登録後にご覧いただけます。

会員登録(無料)
×
区分
新着・未公開物件情報

登録で 会員規約プライバシーポリシー に同意したものとします。

※必須

会員登録(無料)
物件詳細や公開情報がご覧になれます!