石神井公園駅徒歩5分のスケルトン店舗物件のご案内です。

ゲスト

営業時間:9:30~18:30(土日・祝日を除く)

ゲスト

石神井公園駅徒歩5分のスケルトン店舗物件のご案内です。

居抜き市場トップ 居抜き物件、貸店舗を探す 西武池袋線 , 練馬区 石神井公園駅徒歩5分のスケルトン店舗物件詳細

西武池袋線

石神井公園駅

徒歩5

所在地

練馬区石神井町・・・詳細は

石神井公園のスケルトン店舗物件の内装
貸店舗(スケルトン)の外観

ログイン後に

物件情報の全てがご覧いただけます。

会員登録(無料)
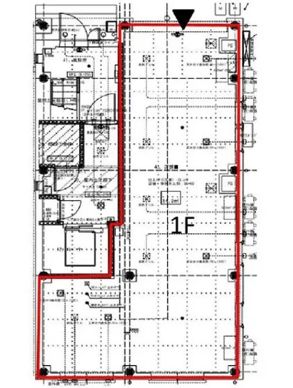
石神井公園のスケルトン物件の平面図

ログイン後に

物件情報の全てがご覧いただけます。

会員登録(無料)
石神井公園のスケルトン店舗物件の内装
貸店舗(スケルトン)の外観
石神井公園のスケルトン物件の平面図
賃料

352,000円(税込)

階数/面積

1F / 16.61坪 (54.9㎡)

敷金・保証金

6ヶ月分

飲食条件

軽飲食可

物件タイプ/現業態

スケルトン

※会員限定の
情報
ございます。

会員限定の情報がございます。

会員登録(無料)をしていただくと、 物件詳細、物件資料のダウンロード、地図での立地確認など 会員限定の公開情報を閲覧・取得できるようになります。

会員登録(無料)

西武池袋線『石神井公園駅』徒歩5分、飲食相談可能な貸店舗のご案内です。「富士街道」沿い、交通量の多い通勤動線の1階・新築店舗です!入居日は3月中旬予定。飲食は軽飲食ご相談となりますが、その他条件等お気軽にお問合せください。

物件概要

会員登録(無料)をすることで
物件情報の全てがご覧いただけます。

会員登録(無料)をしていただくと、他社には出回っていない物件情報の収集、
非会員の方には閲覧できない詳細情報、物件資料のダウンロード、
地図での立地確認など会員限定公開情報を閲覧・取得できるようになります。

会員登録(無料)

地図

会員登録後にご覧いただけます。

会員登録(無料)
×
区分
新着・未公開物件情報

登録で 会員規約プライバシーポリシー に同意したものとします。

※必須

会員登録(無料)
物件詳細や公開情報がご覧になれます!