庚申塚駅徒歩3分のスケルトン物件のご案内です。

ゲスト

営業時間:9:30~18:30(土日・祝日を除く)

ゲスト

庚申塚駅徒歩3分のスケルトン物件のご案内です。

居抜き市場トップ 居抜き物件、貸店舗を探す 東京さくらトラム(都電荒川線) , 豊島区 庚申塚駅徒歩3分のスケルトン物件情報

東京さくらトラム(都電荒川線)

庚申塚駅

徒歩3

所在地

豊島区西巣鴨・・・詳細は

庚申塚のスケルトン物件の外観
庚申塚のスケルトン店舗物件の外観

ログイン後に

物件情報の全てがご覧いただけます。

会員登録(無料)
貸店舗(スケルトン)の内装

ログイン後に

物件情報の全てがご覧いただけます。

会員登録(無料)
庚申塚のスケルトン物件の内装

ログイン後に

物件情報の全てがご覧いただけます。

会員登録(無料)
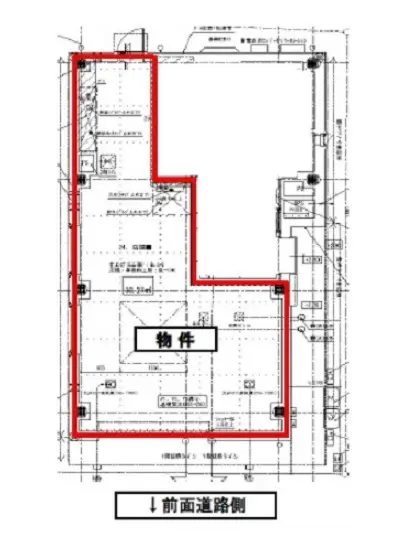
貸店舗(スケルトン)の平面図

ログイン後に

物件情報の全てがご覧いただけます。

会員登録(無料)
庚申塚のスケルトン物件の外観
庚申塚のスケルトン店舗物件の外観
貸店舗(スケルトン)の内装
庚申塚のスケルトン物件の内装
貸店舗(スケルトン)の平面図
賃料

154,000円(税込)

階数/面積

1F / 9.16坪 (30.27㎡)

敷金・保証金

6ヶ月分

飲食条件

飲食可(重飲食不可)

物件タイプ/現業態

スケルトン

※会員限定の
情報
ございます。

会員限定の情報がございます。

会員登録(無料)をしていただくと、 物件詳細、物件資料のダウンロード、地図での立地確認など 会員限定の公開情報を閲覧・取得できるようになります。

会員登録(無料)

都電荒川線『庚申塚駅』徒歩3分、飲食店ご相談可能な貸店舗のご案内です。庚申塚通りに面する、視認性良好な1階路面店。駅からのアクセスも良好のため、駅利用者や地域住民を中心とした集客が期待できます。諸条件等、お気軽にお問い合わせください。

物件概要

会員登録(無料)をすることで
物件情報の全てがご覧いただけます。

会員登録(無料)をしていただくと、他社には出回っていない物件情報の収集、
非会員の方には閲覧できない詳細情報、物件資料のダウンロード、
地図での立地確認など会員限定公開情報を閲覧・取得できるようになります。

会員登録(無料)

地図

会員登録後にご覧いただけます。

会員登録(無料)
×
区分
新着・未公開物件情報

登録で 会員規約プライバシーポリシー に同意したものとします。

※必須

会員登録(無料)
物件詳細や公開情報がご覧になれます!