末広町駅徒歩3分のスケルトン店舗物件のご案内です。

ゲスト

営業時間:9:30~18:30(土日・祝日を除く)

ゲスト

末広町駅徒歩3分のスケルトン店舗物件のご案内です。

居抜き市場トップ 居抜き物件、貸店舗を探す 東京メトロ銀座線 , 千代田区 末広町駅徒歩3分のスケルトン店舗物件詳細

東京メトロ銀座線

末広町駅

徒歩3

所在地

千代田区外神田・・・詳細は

末広町のスケルトン店舗物件の外観
貸店舗(スケルトン)の外観

ログイン後に

物件情報の全てがご覧いただけます。

会員登録(無料)
末広町のスケルトン店舗物件の外観

ログイン後に

物件情報の全てがご覧いただけます。

会員登録(無料)
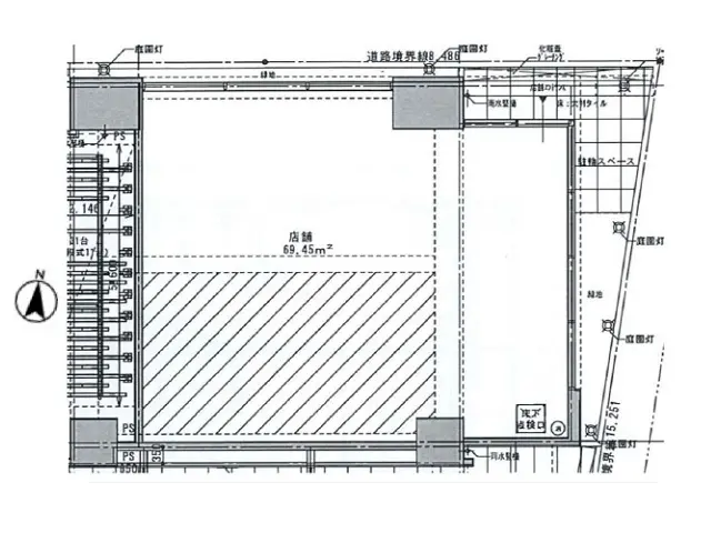
末広町のスケルトン店舗物件の平面図

ログイン後に

物件情報の全てがご覧いただけます。

会員登録(無料)
末広町のスケルトン店舗物件の外観
貸店舗(スケルトン)の外観
末広町のスケルトン店舗物件の外観
末広町のスケルトン店舗物件の平面図
賃料

525,300円(税込)

階数/面積

1F / 21.01坪 (69.45㎡)

敷金・保証金

12ヶ月分

飲食条件

軽飲食可

物件タイプ/現業態

スケルトン

※会員限定の
情報
ございます。

会員限定の情報がございます。

会員登録(無料)をしていただくと、 物件詳細、物件資料のダウンロード、地図での立地確認など 会員限定の公開情報を閲覧・取得できるようになります。

会員登録(無料)

東京メトロ銀座線『末広町駅』徒歩3分、飲食店ご相談可能な貸店舗のご紹介です。蔵前橋通りに面する、視認性良好な新築1階路面店。駅からのアクセス良好なため、駅利用者を中心とした集客が期待できます。諸条件等、お気軽にお問い合わせください。

物件概要

会員登録(無料)をすることで
物件情報の全てがご覧いただけます。

会員登録(無料)をしていただくと、他社には出回っていない物件情報の収集、
非会員の方には閲覧できない詳細情報、物件資料のダウンロード、
地図での立地確認など会員限定公開情報を閲覧・取得できるようになります。

会員登録(無料)

地図

会員登録後にご覧いただけます。

会員登録(無料)
×
区分
新着・未公開物件情報

登録で 会員規約プライバシーポリシー に同意したものとします。

※必須

会員登録(無料)
物件詳細や公開情報がご覧になれます!