港区六本木にある2階の焼肉屋居抜き物件のご案内です。

ゲスト

営業時間:9:30~18:30(土日・祝日を除く)

ゲスト

港区六本木にある2階の焼肉屋居抜き物件のご案内です。

居抜き市場トップ 居抜き物件、貸店舗を探す 東京メトロ日比谷線 , 港区 港区六本木にある2階の焼肉屋居抜き物件詳細

東京メトロ日比谷線

六本木駅

徒歩1

所在地

港区六本木・・・詳細は

六本木の焼肉屋居抜きの内装
焼肉屋の居抜き物件の内装

ログイン後に

物件情報の全てがご覧いただけます。

会員登録(無料)
焼肉屋の居抜き物件の内装

ログイン後に

物件情報の全てがご覧いただけます。

会員登録(無料)
六本木の居抜き店舗の厨房

ログイン後に

物件情報の全てがご覧いただけます。

会員登録(無料)
焼肉屋の居抜き物件の厨房

ログイン後に

物件情報の全てがご覧いただけます。

会員登録(無料)
六本木の焼肉屋居抜きの外観

ログイン後に

物件情報の全てがご覧いただけます。

会員登録(無料)
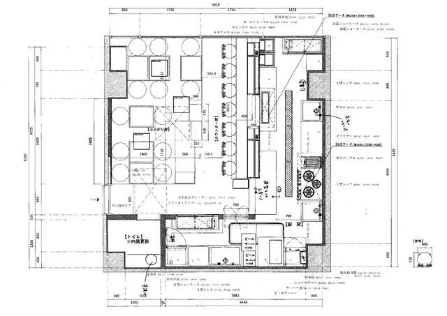
六本木の居抜き店舗の平面図

ログイン後に

物件情報の全てがご覧いただけます。

会員登録(無料)
六本木の焼肉屋居抜きの内装
焼肉屋の居抜き物件の内装
焼肉屋の居抜き物件の内装
六本木の居抜き店舗の厨房
焼肉屋の居抜き物件の厨房
六本木の焼肉屋居抜きの外観
六本木の居抜き店舗の平面図
賃料

715,000円(税込)

階数/面積

2F / 15坪 (49.58㎡)

敷金・保証金

9ヶ月分

造作代金

相談

飲食条件

飲食可

物件タイプ/現業態

居抜き / 焼肉屋

※会員限定の
情報
ございます。

会員限定の情報がございます。

会員登録(無料)をしていただくと、 物件詳細、物件資料のダウンロード、地図での立地確認など 会員限定の公開情報を閲覧・取得できるようになります。

会員登録(無料)

東京メトロ日比谷線『六本木駅』徒歩1分、焼肉店居抜き物件のご紹介です。カウンター席・小上がりのあるコンパクトな店舗。多くの飲食店が軒を連ねる芋洗坂沿いビルの2階テナントです。曜日や時間帯問わず集客が期待できるエリア!諸条件等、お気軽にお問合せください。

物件概要

会員登録(無料)をすることで
物件情報の全てがご覧いただけます。

会員登録(無料)をしていただくと、他社には出回っていない物件情報の収集、
非会員の方には閲覧できない詳細情報、物件資料のダウンロード、
地図での立地確認など会員限定公開情報を閲覧・取得できるようになります。

会員登録(無料)

地図

会員登録後にご覧いただけます。

会員登録(無料)
×
区分
新着・未公開物件情報

登録で 会員規約プライバシーポリシー に同意したものとします。

※必須

会員登録(無料)
物件詳細や公開情報がご覧になれます!