さいたま市浦和区東仲町にある1階の美容室・理容室居抜き物件のご案内です。

ゲスト

営業時間:9:30~18:30(土日・祝日を除く)

ゲスト

さいたま市浦和区東仲町にある1階の美容室・理容室居抜き物件のご案内です。

居抜き市場トップ 居抜き物件、貸店舗を探す JR高崎線 , さいたま市浦和区 さいたま市浦和区東仲町にある1階の美容室・理容室居抜き物件詳細

JR高崎線

浦和駅

徒歩2

所在地

さいたま市浦和区東仲町・・・詳細は

美容室・理容室の居抜き物件の外観
浦和の美容室・理容室居抜きの外観

ログイン後に

物件情報の全てがご覧いただけます。

会員登録(無料)
美容室・理容室の居抜き物件の外観

ログイン後に

物件情報の全てがご覧いただけます。

会員登録(無料)
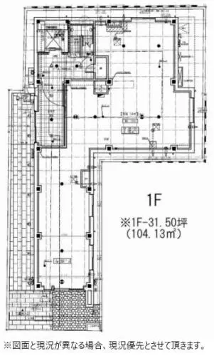
浦和の居抜き店舗の平面図

ログイン後に

物件情報の全てがご覧いただけます。

会員登録(無料)
美容室・理容室の居抜き物件の外観
浦和の美容室・理容室居抜きの外観
美容室・理容室の居抜き物件の外観
浦和の居抜き店舗の平面図
賃料

715,000円(税込)

階数/面積

1F / 31.5坪 (104.13㎡)

敷金・保証金

8ヶ月分

造作代金

7,000,000円(税込)

飲食条件

軽飲食可

物件タイプ/現業態

居抜き / 美容室・理容室

※会員限定の
情報
ございます。

会員限定の情報がございます。

会員登録(無料)をしていただくと、 物件詳細、物件資料のダウンロード、地図での立地確認など 会員限定の公開情報を閲覧・取得できるようになります。

会員登録(無料)

JR高崎線『浦和駅』徒歩2分、美容室居抜き物件のご紹介です。約31.5坪の広々とした店内。駅前大通りから少し入った落ち着いた立地です。駅からアクセス良好でリピーター獲得が期待できます!軽飲食のご相談も可能なため、業種等お気軽にお問合せください。

物件概要

会員登録(無料)をすることで
物件情報の全てがご覧いただけます。

会員登録(無料)をしていただくと、他社には出回っていない物件情報の収集、
非会員の方には閲覧できない詳細情報、物件資料のダウンロード、
地図での立地確認など会員限定公開情報を閲覧・取得できるようになります。

会員登録(無料)

地図

会員登録後にご覧いただけます。

会員登録(無料)
×
区分
新着・未公開物件情報

登録で 会員規約プライバシーポリシー に同意したものとします。

※必須

会員登録(無料)
物件詳細や公開情報がご覧になれます!