大山駅徒歩4分のスケルトン物件のご案内です。

ゲスト

営業時間:9:30~18:30(土日・祝日を除く)

ゲスト

大山駅徒歩4分のスケルトン物件のご案内です。

居抜き市場トップ 居抜き物件、貸店舗を探す 東武東上線 , 板橋区 大山駅徒歩4分のスケルトン物件情報

東武東上線

大山駅

徒歩4

所在地

板橋区大山金井町・・・詳細は

大山のスケルトン店舗物件の外観
貸店舗(スケルトン)の内装

ログイン後に

物件情報の全てがご覧いただけます。

会員登録(無料)
大山のスケルトン店舗物件の内装

ログイン後に

物件情報の全てがご覧いただけます。

会員登録(無料)
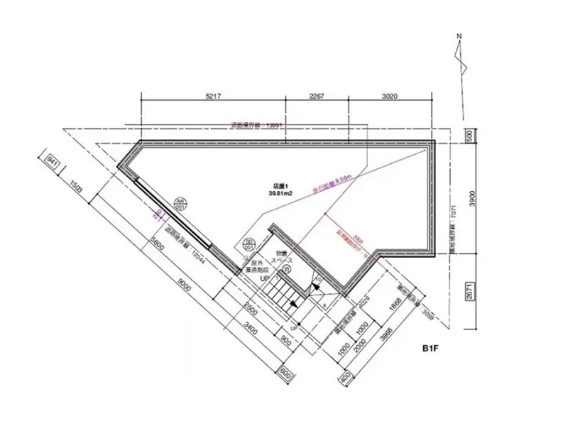
大山のスケルトン物件の平面図

ログイン後に

物件情報の全てがご覧いただけます。

会員登録(無料)
大山のスケルトン店舗物件の外観
貸店舗(スケルトン)の内装
大山のスケルトン店舗物件の内装
大山のスケルトン物件の平面図
賃料

208,000円(税込)

階数/面積

-1F / 12.04坪 (39.81㎡)

敷金・保証金

3ヶ月分

飲食条件

飲食可

物件タイプ/現業態

スケルトン

※会員限定の
情報
ございます。

会員限定の情報がございます。

会員登録(無料)をしていただくと、 物件詳細、物件資料のダウンロード、地図での立地確認など 会員限定の公開情報を閲覧・取得できるようになります。

会員登録(無料)
  • 路面店

【新築】東武東上線『大山駅』徒歩4分、飲食店曽津案可能な貸店舗のご紹介です。2025年2月竣工の新築スケルトン物件!スタイリッシュな外観の地下1階店舗です。諸条件等、お気軽にお問合せください。

物件概要

会員登録(無料)をすることで
物件情報の全てがご覧いただけます。

会員登録(無料)をしていただくと、他社には出回っていない物件情報の収集、
非会員の方には閲覧できない詳細情報、物件資料のダウンロード、
地図での立地確認など会員限定公開情報を閲覧・取得できるようになります。

会員登録(無料)

地図

会員登録後にご覧いただけます。

会員登録(無料)
×
区分
新着・未公開物件情報

登録で 会員規約プライバシーポリシー に同意したものとします。

※必須

会員登録(無料)
物件詳細や公開情報がご覧になれます!