広尾駅、1階路面のスケルトン店舗物件のご案内です。

ゲスト

営業時間:9:30~18:30(土日・祝日を除く)

ゲスト

広尾駅、1階路面のスケルトン店舗物件のご案内です。

居抜き市場トップ 居抜き物件、貸店舗を探す 東京メトロ日比谷線 , 港区 広尾駅、1階路面のスケルトン店舗物件情報

東京メトロ日比谷線

広尾駅

徒歩7

所在地

港区西麻布・・・詳細は

広尾のスケルトン店舗物件の外観
貸店舗(スケルトン)の入口

ログイン後に

物件情報の全てがご覧いただけます。

会員登録(無料)
広尾のスケルトン店舗物件の内装

ログイン後に

物件情報の全てがご覧いただけます。

会員登録(無料)
貸店舗(スケルトン)の共用部

ログイン後に

物件情報の全てがご覧いただけます。

会員登録(無料)
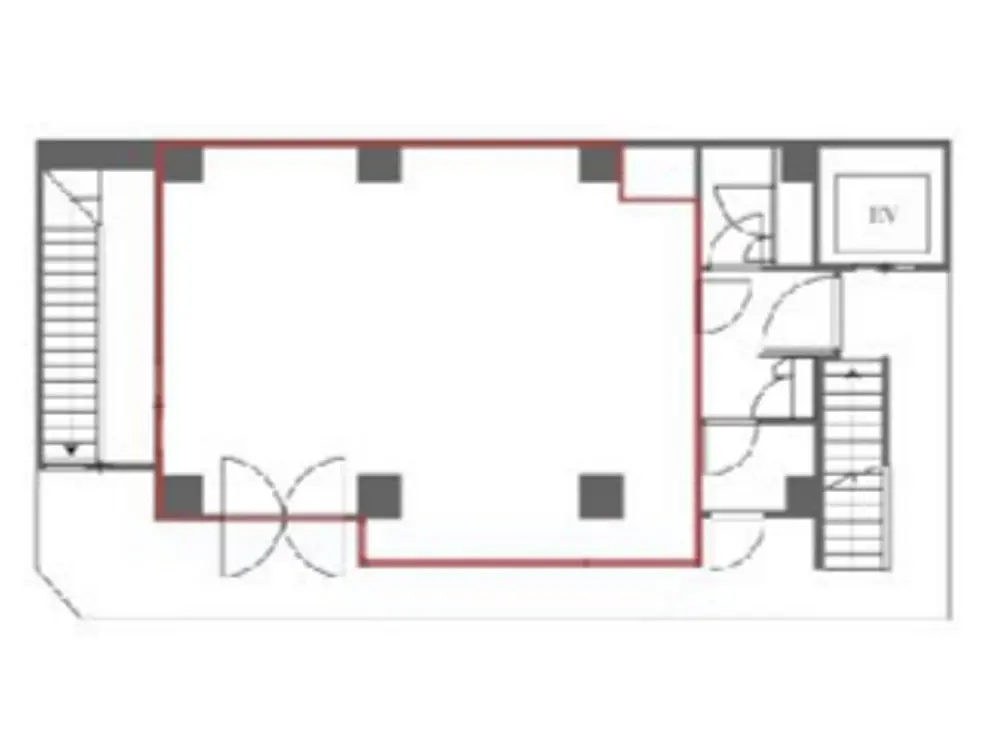
貸店舗(スケルトン)の平面図

ログイン後に

物件情報の全てがご覧いただけます。

会員登録(無料)
広尾のスケルトン店舗物件の外観
貸店舗(スケルトン)の入口
広尾のスケルトン店舗物件の内装
貸店舗(スケルトン)の共用部
貸店舗(スケルトン)の平面図
賃料

1,210,000円(税込)

階数/面積

1F / 19.04坪 (62.93㎡)

敷金・保証金

6ヶ月分

飲食条件

飲食可

物件タイプ/現業態

スケルトン

※会員限定の
情報
ございます。

会員限定の情報がございます。

会員登録(無料)をしていただくと、 物件詳細、物件資料のダウンロード、地図での立地確認など 会員限定の公開情報を閲覧・取得できるようになります。

会員登録(無料)
  • 路面店

日比谷線『広尾駅』徒歩7分、飲食店ご相談可能な貸店舗のご案内です。新築物件の1階で視認性良好!周囲はレビューでも好評のバーが多く、他にはフランス料理屋、土鍋ご飯屋、居酒屋など飲食店が多数あります。業種等お気軽にお問い合わせください。

物件概要

会員登録(無料)をすることで
物件情報の全てがご覧いただけます。

会員登録(無料)をしていただくと、他社には出回っていない物件情報の収集、
非会員の方には閲覧できない詳細情報、物件資料のダウンロード、
地図での立地確認など会員限定公開情報を閲覧・取得できるようになります。

会員登録(無料)

地図

会員登録後にご覧いただけます。

会員登録(無料)
×
区分
新着・未公開物件情報

登録で 会員規約プライバシーポリシー に同意したものとします。

※必須

会員登録(無料)
物件詳細や公開情報がご覧になれます!