六本木駅徒歩3分のリース店舗物件のご案内です。

ゲスト

営業時間:9:30~18:30(土日・祝日を除く)

ゲスト

六本木駅徒歩3分のリース店舗物件のご案内です。

居抜き市場トップ 居抜き物件、貸店舗を探す 東京メトロ日比谷線 , 港区 六本木駅徒歩3分のリース店舗物件詳細

東京メトロ日比谷線

六本木駅

徒歩3

所在地

港区六本木・・・詳細は

貸店舗(リース)の内装
貸店舗(リース)の内装

ログイン後に

物件情報の全てがご覧いただけます。

会員登録(無料)
六本木のリース店舗物件の厨房

ログイン後に

物件情報の全てがご覧いただけます。

会員登録(無料)
六本木のリース店舗物件のエントランス

ログイン後に

物件情報の全てがご覧いただけます。

会員登録(無料)
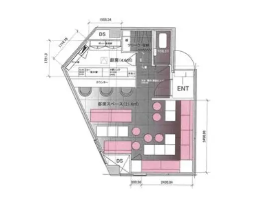
六本木のリース物件の平面図

ログイン後に

物件情報の全てがご覧いただけます。

会員登録(無料)
六本木のリース店舗物件のエントランス

ログイン後に

物件情報の全てがご覧いただけます。

会員登録(無料)
六本木のリース店舗物件の外観

ログイン後に

物件情報の全てがご覧いただけます。

会員登録(無料)
貸店舗(リース)の内装
貸店舗(リース)の内装
六本木のリース店舗物件の厨房
六本木のリース店舗物件のエントランス
六本木のリース物件の平面図
六本木のリース店舗物件のエントランス
六本木のリース店舗物件の外観
賃料

462,000円(税込)

階数/面積

2F / 10.61坪 (35.09㎡)

敷金・保証金

6ヶ月分

飲食条件

飲食可

物件タイプ/現業態

リース

※会員限定の
情報
ございます。

会員限定の情報がございます。

会員登録(無料)をしていただくと、 物件詳細、物件資料のダウンロード、地図での立地確認など 会員限定の公開情報を閲覧・取得できるようになります。

会員登録(無料)

2路線利用可能な『六本木駅』徒歩3分、バーやスナックにおすすめな貸店舗のご紹介です。店内はカウンター3席とソファー席のレイアウト。周辺にはオフィスビルが多く、仕事帰りのビジネスパーソンをはじめとした集客が期待できます。諸条件等、お気軽にお問合せください。

物件概要

会員登録(無料)をすることで
物件情報の全てがご覧いただけます。

会員登録(無料)をしていただくと、他社には出回っていない物件情報の収集、
非会員の方には閲覧できない詳細情報、物件資料のダウンロード、
地図での立地確認など会員限定公開情報を閲覧・取得できるようになります。

会員登録(無料)

地図

会員登録後にご覧いただけます。

会員登録(無料)
×
区分
新着・未公開物件情報

登録で 会員規約プライバシーポリシー に同意したものとします。

※必須

会員登録(無料)
物件詳細や公開情報がご覧になれます!