四ツ谷駅徒歩3分の自由に造作が可能なスケルトン物件のご案内です。

ゲスト

営業時間:9:30~18:30(土日・祝日を除く)

ゲスト

四ツ谷駅徒歩3分の自由に造作が可能なスケルトン物件のご案内です。

居抜き市場トップ 居抜き物件、貸店舗を探す 東京メトロ丸ノ内線 , 新宿区 四ツ谷駅徒歩3分の自由に造作が可能なスケルトン物件詳細

東京メトロ丸ノ内線

四ツ谷駅

徒歩3

所在地

新宿区四谷・・・詳細は

貸店舗(スケルトン)の内装
四ツ谷のスケルトン店舗物件の外観

ログイン後に

物件情報の全てがご覧いただけます。

会員登録(無料)
貸店舗(スケルトン)の内装

ログイン後に

物件情報の全てがご覧いただけます。

会員登録(無料)
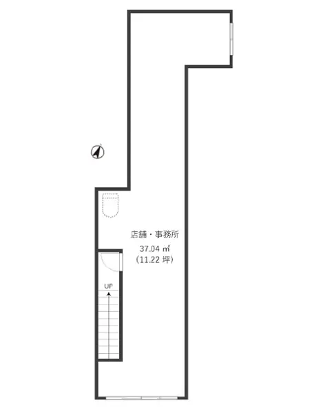
四ツ谷のスケルトン物件の平面図

ログイン後に

物件情報の全てがご覧いただけます。

会員登録(無料)
貸店舗(スケルトン)の内装
四ツ谷のスケルトン店舗物件の外観
貸店舗(スケルトン)の内装
四ツ谷のスケルトン物件の平面図
賃料

250,000円(税込)

階数/面積

2F / 11.2坪 (37.04㎡)

敷金・保証金

軽飲食相談:保証金8ヶ月

飲食条件

軽飲食可

物件タイプ/現業態

スケルトン

※会員限定の
情報
ございます。

会員限定の情報がございます。

会員登録(無料)をしていただくと、 物件詳細、物件資料のダウンロード、地図での立地確認など 会員限定の公開情報を閲覧・取得できるようになります。

会員登録(無料)

東京メトロ丸ノ内線・南北線、JR総武中央線『四ツ谷駅』徒歩3分、飲食店ご相談可能な貸店舗のご案内です。「しんみち商店街」沿いの2階店舗。新規フルリフォーム中で、クロス・床・トイレ・エアコンなど新品仕様となります。トイレ位置やクロス・床材など、借主様の希望を聞いて施工してもらえます。業種等お気軽にお問い合わせください。

物件概要

会員登録(無料)をすることで
物件情報の全てがご覧いただけます。

会員登録(無料)をしていただくと、他社には出回っていない物件情報の収集、
非会員の方には閲覧できない詳細情報、物件資料のダウンロード、
地図での立地確認など会員限定公開情報を閲覧・取得できるようになります。

会員登録(無料)

地図

会員登録後にご覧いただけます。

会員登録(無料)
×
区分
新着・未公開物件情報

登録で 会員規約プライバシーポリシー に同意したものとします。

※必須

会員登録(無料)
物件詳細や公開情報がご覧になれます!