菊川駅徒歩8分の事務所仕様の店舗物件のご案内です。

ゲスト

営業時間:9:30~18:30(土日・祝日を除く)

ゲスト

菊川駅徒歩8分の事務所仕様の店舗物件のご案内です。

居抜き市場トップ 居抜き物件、貸店舗を探す 都営新宿線 , 墨田区 菊川駅徒歩8分の事務所仕様の店舗物件詳細

都営新宿線

菊川駅

徒歩8

所在地

墨田区緑・・・詳細は

菊川の事務所仕様物件の外観
菊川の事務所仕様店舗物件の外観

ログイン後に

物件情報の全てがご覧いただけます。

会員登録(無料)
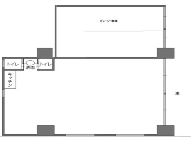
貸店舗(事務所仕様)の平面図

ログイン後に

物件情報の全てがご覧いただけます。

会員登録(無料)
菊川の事務所仕様物件の外観
菊川の事務所仕様店舗物件の外観
貸店舗(事務所仕様)の平面図
賃料

209,000円(税込)

階数/面積

1F / 14.16坪 (46.8㎡)

敷金・保証金

3ヶ月分

飲食条件

飲食可

物件タイプ/現業態

事務所仕様

※会員限定の
情報
ございます。

会員限定の情報がございます。

会員登録(無料)をしていただくと、 物件詳細、物件資料のダウンロード、地図での立地確認など 会員限定の公開情報を閲覧・取得できるようになります。

会員登録(無料)

都営新宿線『菊川駅』徒歩8分、飲食店ご相談可能な貸店舗のご案内です。総武線『錦糸町駅』からも徒歩12分。「馬車通り」沿いの1階。周辺は住宅と会社が多い環境。前テナントは事務所。業種等お気軽にお問い合わせください。

物件概要

会員登録(無料)をすることで
物件情報の全てがご覧いただけます。

会員登録(無料)をしていただくと、他社には出回っていない物件情報の収集、
非会員の方には閲覧できない詳細情報、物件資料のダウンロード、
地図での立地確認など会員限定公開情報を閲覧・取得できるようになります。

会員登録(無料)

地図

会員登録後にご覧いただけます。

会員登録(無料)
×
区分
新着・未公開物件情報

登録で 会員規約プライバシーポリシー に同意したものとします。

※必須

会員登録(無料)
物件詳細や公開情報がご覧になれます!