重飲食可能な千代田区西神田にある1階の居抜き物件のご案内です。

ゲスト

営業時間:9:30~18:30(土日・祝日を除く)

ゲスト

重飲食可能な千代田区西神田にある1階の居抜き物件のご案内です。

居抜き市場トップ 居抜き物件、貸店舗を探す JR中央・総武線 , 千代田区 重飲食可能な千代田区西神田にある1階の居抜き物件情報

JR中央・総武線

水道橋駅

徒歩4

所在地

千代田区西神田・・・詳細は

カフェ・喫茶店の居抜き物件の内装
カフェ・喫茶店の居抜き物件の厨房

ログイン後に

物件情報の全てがご覧いただけます。

会員登録(無料)
水道橋の居抜き店舗の厨房

ログイン後に

物件情報の全てがご覧いただけます。

会員登録(無料)
カフェ・喫茶店の居抜き物件の厨房

ログイン後に

物件情報の全てがご覧いただけます。

会員登録(無料)
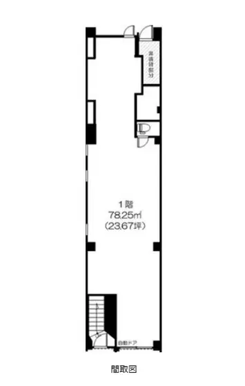
カフェ・喫茶店の居抜き物件の平面図

ログイン後に

物件情報の全てがご覧いただけます。

会員登録(無料)
水道橋のカフェ・喫茶店居抜きの外観

ログイン後に

物件情報の全てがご覧いただけます。

会員登録(無料)
水道橋の居抜き店舗の地図

ログイン後に

物件情報の全てがご覧いただけます。

会員登録(無料)
カフェ・喫茶店の居抜き物件の内装
カフェ・喫茶店の居抜き物件の厨房
水道橋の居抜き店舗の厨房
カフェ・喫茶店の居抜き物件の厨房
カフェ・喫茶店の居抜き物件の平面図
水道橋のカフェ・喫茶店居抜きの外観
水道橋の居抜き店舗の地図
賃料

890,000円(税込)

階数/面積

1F / 23.67坪 (78.25㎡)

敷金・保証金

10ヶ月分

造作代金

4,180,000円(税込)

飲食条件

重飲食可

物件タイプ/現業態

居抜き / カフェ・喫茶店

※会員限定の
情報
ございます。

会員限定の情報がございます。

会員登録(無料)をしていただくと、 物件詳細、物件資料のダウンロード、地図での立地確認など 会員限定の公開情報を閲覧・取得できるようになります。

会員登録(無料)

『水道橋駅』『神保町駅』両駅からアクセス良好なカフェ居抜き物件のご紹介です。人通り多く多様な人気店が軒を連ねる白山通り沿いの1階路面店舗!店内は奥行きのある店内にテーブル席が並んだ配置になっております。厨房は前々業種の焼鳥居酒屋の設備が残っており、重飲食でも低予算で開業が可能!奧には物置等としてご利用頂けるスペースもございます。重飲食のご相談も可能ですので、お気軽にお問合せください。

物件概要

会員登録(無料)をすることで
物件情報の全てがご覧いただけます。

会員登録(無料)をしていただくと、他社には出回っていない物件情報の収集、
非会員の方には閲覧できない詳細情報、物件資料のダウンロード、
地図での立地確認など会員限定公開情報を閲覧・取得できるようになります。

会員登録(無料)

地図

会員登録後にご覧いただけます。

会員登録(無料)
×
区分
新着・未公開物件情報

登録で 会員規約プライバシーポリシー に同意したものとします。

※必須

会員登録(無料)
物件詳細や公開情報がご覧になれます!