目白駅徒歩3分の飲食店居抜き店舗のご案内です。

ゲスト

営業時間:9:30~18:30(土日・祝日を除く)

ゲスト

目白駅徒歩3分の飲食店居抜き店舗のご案内です。

居抜き市場トップ 居抜き物件、貸店舗を探す JR山手線 , 豊島区 目白駅徒歩3分の飲食店居抜き店舗詳細

JR山手線

目白駅

徒歩3

所在地

豊島区目白・・・詳細は

目白の居酒屋居抜きの内装
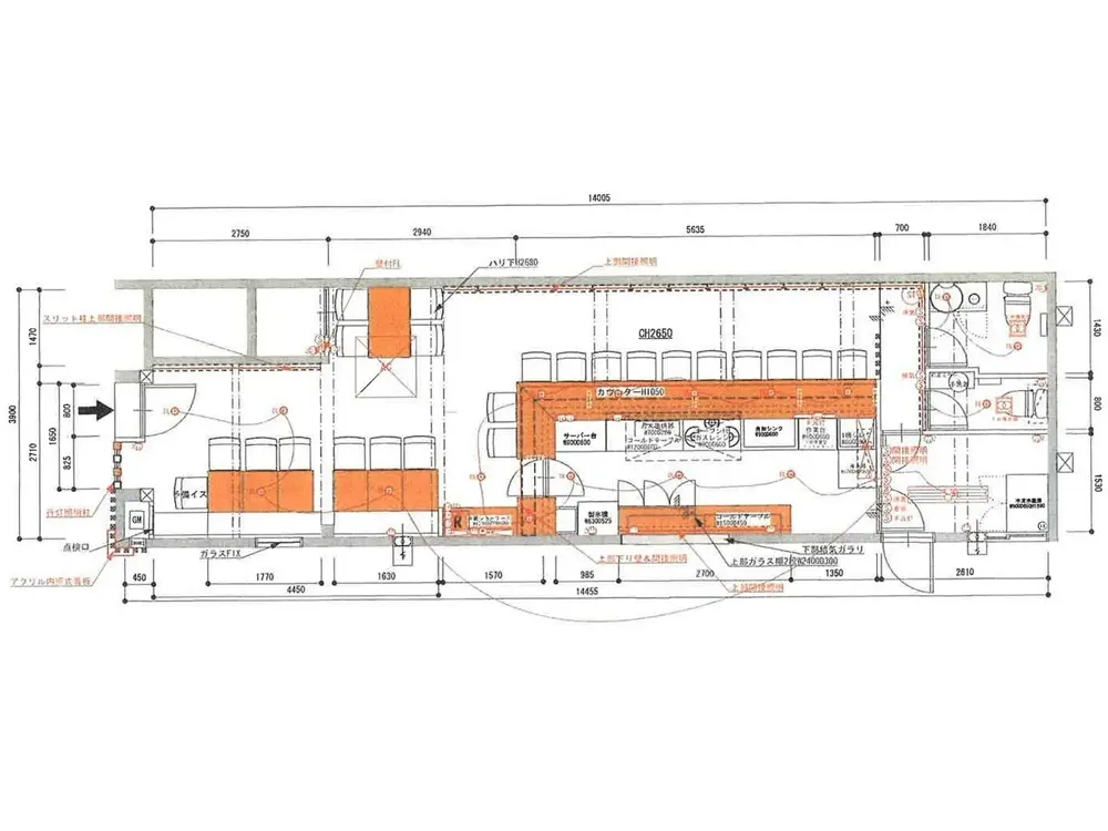
目白の居抜き店舗の平面図

ログイン後に

物件情報の全てがご覧いただけます。

会員登録(無料)
居酒屋の居抜き物件のエントランス

ログイン後に

物件情報の全てがご覧いただけます。

会員登録(無料)
居酒屋の居抜き物件の内装

ログイン後に

物件情報の全てがご覧いただけます。

会員登録(無料)
目白の居抜き店舗の厨房

ログイン後に

物件情報の全てがご覧いただけます。

会員登録(無料)
目白の居酒屋居抜きの内装
目白の居抜き店舗の平面図
居酒屋の居抜き物件のエントランス
居酒屋の居抜き物件の内装
目白の居抜き店舗の厨房
賃料

451,000円(税込)

階数/面積

1F / 18.06坪 (59.7㎡)

敷金・保証金

400万円

造作代金

1,320,000円(税込)

飲食条件

飲食可

物件タイプ/現業態

居抜き / 居酒屋

※会員限定の
情報
ございます。

会員限定の情報がございます。

会員登録(無料)をしていただくと、 物件詳細、物件資料のダウンロード、地図での立地確認など 会員限定の公開情報を閲覧・取得できるようになります。

会員登録(無料)

JR山手線『目白駅』徒歩3分、もつ焼き店居抜き物件のご紹介です。一枚板の重厚なカウンターが目を引く、オープンキッチン!店内はカウンター12席・テーブル16席のレイアウトでお一人様からグループ客まで幅広いお客様に対応可能です。厨房機器、屋上までのダクト、グリストございます。周辺では、焼肉、焼き鳥、イタリアン、居酒屋と多数の飲食店が営業中です。諸条件等、お気軽にお問合せください。

物件概要

会員登録(無料)をすることで
物件情報の全てがご覧いただけます。

会員登録(無料)をしていただくと、他社には出回っていない物件情報の収集、
非会員の方には閲覧できない詳細情報、物件資料のダウンロード、
地図での立地確認など会員限定公開情報を閲覧・取得できるようになります。

会員登録(無料)

地図

会員登録後にご覧いただけます。

会員登録(無料)
×
区分
新着・未公開物件情報

登録で 会員規約プライバシーポリシー に同意したものとします。

※必須

会員登録(無料)
物件詳細や公開情報がご覧になれます!