さいたま市緑区東浦和にある1-2階の事務所仕様の貸店舗・テナント物件のご案内です。

ゲスト

営業時間:9:30~18:30(土日・祝日を除く)

ゲスト

さいたま市緑区東浦和にある1-2階の事務所仕様の貸店舗・テナント物件のご案内です。

居抜き市場トップ 居抜き物件、貸店舗を探す JR武蔵野線 , さいたま市緑区 さいたま市緑区東浦和にある1-2階の事務所仕様の貸店舗・テナント物件詳細

JR武蔵野線

東浦和駅

徒歩4

所在地

さいたま市緑区東浦和・・・詳細は

東浦和の事務所仕様物件の外観
東浦和の事務所仕様店舗物件の内装

ログイン後に

物件情報の全てがご覧いただけます。

会員登録(無料)
東浦和の事務所仕様物件の内装

ログイン後に

物件情報の全てがご覧いただけます。

会員登録(無料)
貸店舗(事務所仕様)の内装

ログイン後に

物件情報の全てがご覧いただけます。

会員登録(無料)
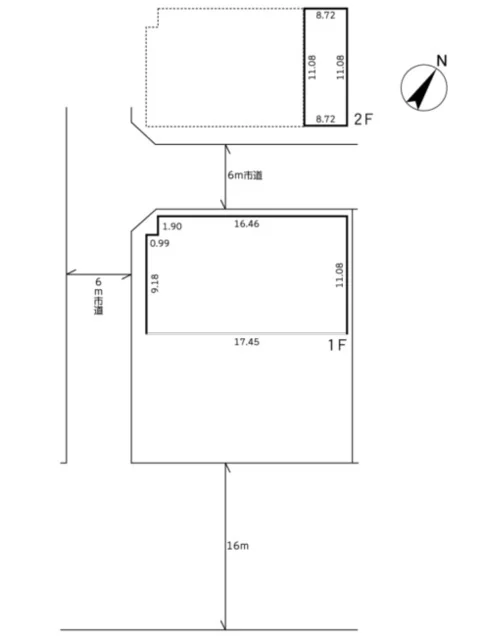
貸店舗(事務所仕様)の平面図

ログイン後に

物件情報の全てがご覧いただけます。

会員登録(無料)
東浦和の事務所仕様物件の外観
東浦和の事務所仕様店舗物件の内装
東浦和の事務所仕様物件の内装
貸店舗(事務所仕様)の内装
貸店舗(事務所仕様)の平面図
賃料

770,000円(税込)

階数/面積

1F~2F / 70.38坪 (232.67㎡)

敷金・保証金

2ヶ月分

飲食条件

飲食可(重飲食不可)

物件タイプ/現業態

事務所仕様

※会員限定の
情報
ございます。

会員限定の情報がございます。

会員登録(無料)をしていただくと、 物件詳細、物件資料のダウンロード、地図での立地確認など 会員限定の公開情報を閲覧・取得できるようになります。

会員登録(無料)

JR武蔵野線『東浦和駅』徒歩4分、飲食店ご相談可能な貸店舗のご案内です。「東浦和駅南通り」沿い、広々とした「井沼方公園」がすぐ隣で開放感があります。この物件は広い駐車場を有していることが魅力です。駐車可能台数は車種にもよりますが10台!業種等お気軽にお問合せください。

物件概要

会員登録(無料)をすることで
物件情報の全てがご覧いただけます。

会員登録(無料)をしていただくと、他社には出回っていない物件情報の収集、
非会員の方には閲覧できない詳細情報、物件資料のダウンロード、
地図での立地確認など会員限定公開情報を閲覧・取得できるようになります。

会員登録(無料)

地図

会員登録後にご覧いただけます。

会員登録(無料)
×
区分
新着・未公開物件情報

登録で 会員規約プライバシーポリシー に同意したものとします。

※必須

会員登録(無料)
物件詳細や公開情報がご覧になれます!