重飲食ができる霞ヶ関駅徒歩6分の事務所仕様の貸店舗・テナント物件のご案内です。

ゲスト

営業時間:9:30~18:30(土日・祝日を除く)

ゲスト

重飲食ができる霞ヶ関駅徒歩6分の事務所仕様の貸店舗・テナント物件のご案内です。

居抜き市場トップ 居抜き物件、貸店舗を探す 東武東上線 , 川越市 重飲食ができる霞ヶ関駅徒歩6分の事務所仕様の貸店舗・テナント物件詳細

東武東上線

霞ヶ関駅

徒歩6

所在地

川越市上戸・・・詳細は

霞ヶ関の事務所仕様物件の外観
霞ヶ関の事務所仕様店舗物件の内装

ログイン後に

物件情報の全てがご覧いただけます。

会員登録(無料)
霞ヶ関の事務所仕様店舗物件の内装

ログイン後に

物件情報の全てがご覧いただけます。

会員登録(無料)
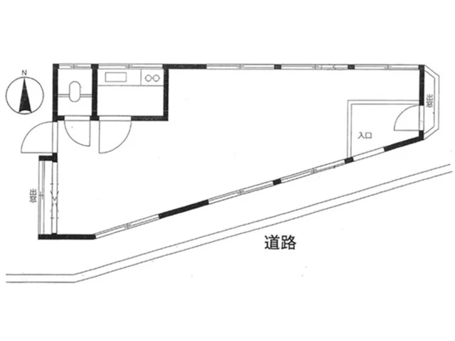
霞ヶ関の事務所仕様物件の平面図

ログイン後に

物件情報の全てがご覧いただけます。

会員登録(無料)
霞ヶ関の事務所仕様物件の外観
霞ヶ関の事務所仕様店舗物件の内装
霞ヶ関の事務所仕様店舗物件の内装
霞ヶ関の事務所仕様物件の平面図
賃料

88,000円(税込)

階数/面積

1F / 8.68坪 (28.72㎡)

敷金・保証金

2ヶ月分

飲食条件

重飲食可

物件タイプ/現業態

事務所仕様

※会員限定の
情報
ございます。

会員限定の情報がございます。

会員登録(無料)をしていただくと、 物件詳細、物件資料のダウンロード、地図での立地確認など 会員限定の公開情報を閲覧・取得できるようになります。

会員登録(無料)

東武東上線『霞ヶ関駅』徒歩6分、重飲食店ご相談可能な貸店舗のご案内です。県道260号線や114号線など、7つの道路が交わる交差点の角地で視認性あります。業種等お気軽にお問合せください。

物件概要

会員登録(無料)をすることで
物件情報の全てがご覧いただけます。

会員登録(無料)をしていただくと、他社には出回っていない物件情報の収集、
非会員の方には閲覧できない詳細情報、物件資料のダウンロード、
地図での立地確認など会員限定公開情報を閲覧・取得できるようになります。

会員登録(無料)

地図

会員登録後にご覧いただけます。

会員登録(無料)
×
区分
新着・未公開物件情報

登録で 会員規約プライバシーポリシー に同意したものとします。

※必須

会員登録(無料)
物件詳細や公開情報がご覧になれます!