造作無償、千代田区麹町の飲食店居抜き店舗のご案内です。

ゲスト

営業時間:9:30~18:30(土日・祝日を除く)

ゲスト

造作無償、千代田区麹町の飲食店居抜き店舗のご案内です。

居抜き市場トップ 居抜き物件、貸店舗を探す 東京メトロ半蔵門線 , 千代田区 造作無償、千代田区麹町の飲食店居抜き店舗詳細

東京メトロ半蔵門線

半蔵門駅

徒歩2

所在地

千代田区麹町・・・詳細は

半蔵門のビストロ・洋食居抜きの内装
半蔵門のビストロ・洋食居抜きの内装

ログイン後に

物件情報の全てがご覧いただけます。

会員登録(無料)
半蔵門のビストロ・洋食居抜きの厨房

ログイン後に

物件情報の全てがご覧いただけます。

会員登録(無料)
ビストロ・洋食の居抜き物件の厨房

ログイン後に

物件情報の全てがご覧いただけます。

会員登録(無料)
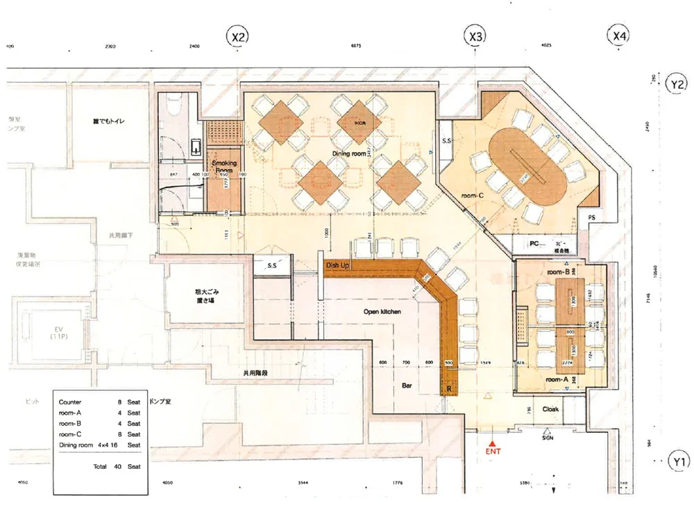
ビストロ・洋食の居抜き物件の平面図

ログイン後に

物件情報の全てがご覧いただけます。

会員登録(無料)
半蔵門のビストロ・洋食居抜きの内装
半蔵門のビストロ・洋食居抜きの内装
半蔵門のビストロ・洋食居抜きの厨房
ビストロ・洋食の居抜き物件の厨房
ビストロ・洋食の居抜き物件の平面図
賃料

1,271,764円(税込)

階数/面積

-1F / 35.96坪 (118.88㎡)

敷金・保証金

10ヶ月分

造作代金

無償譲渡

飲食条件

飲食可

物件タイプ/現業態

居抜き / ビストロ・洋食

※会員限定の
情報
ございます。

会員限定の情報がございます。

会員登録(無料)をしていただくと、 物件詳細、物件資料のダウンロード、地図での立地確認など 会員限定の公開情報を閲覧・取得できるようになります。

会員登録(無料)

半蔵門駅と麹町駅の中心に位置しており、企業はもちろん、多くの人通りもある、駅近好立地物件です。専用階段がある地下1階のビストロの居抜き物件で美内装です。飲食店に必要なグリストやダクトはもちろん、縦型冷凍庫・冷蔵庫、冷蔵コールドテーブル、製氷機、コンベクションオーブン等汎用性の高い厨房機器も揃っており、初期投資を抑えてすぐの出店が可能です。ぜひ一度お問い合わせください。

物件概要

会員登録(無料)をすることで
物件情報の全てがご覧いただけます。

会員登録(無料)をしていただくと、他社には出回っていない物件情報の収集、
非会員の方には閲覧できない詳細情報、物件資料のダウンロード、
地図での立地確認など会員限定公開情報を閲覧・取得できるようになります。

会員登録(無料)

地図

会員登録後にご覧いただけます。

会員登録(無料)
×
区分
新着・未公開物件情報

登録で 会員規約プライバシーポリシー に同意したものとします。

※必須

会員登録(無料)
物件詳細や公開情報がご覧になれます!