北柏駅徒歩3分の飲食店居抜き店舗のご案内です。

ゲスト

営業時間:9:30~18:30(土日・祝日を除く)

ゲスト

北柏駅徒歩3分の飲食店居抜き店舗のご案内です。

居抜き市場トップ 居抜き物件、貸店舗を探す JR常磐線 , 柏市 北柏駅徒歩3分の飲食店居抜き店舗詳細

JR常磐線

北柏駅

徒歩3

所在地

柏市北柏・・・詳細は

北柏のスナック・パブ居抜きの外観
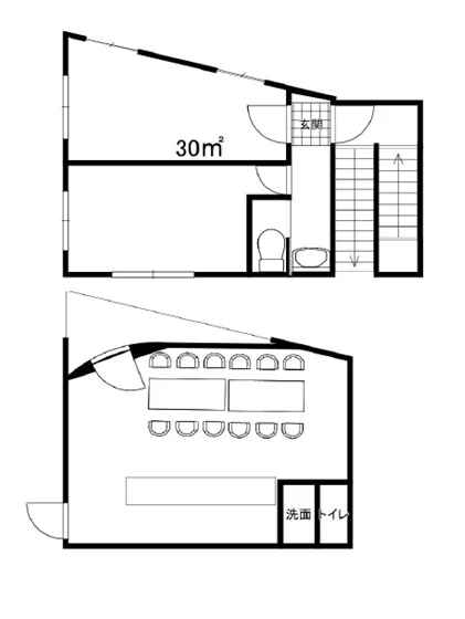
スナック・パブの居抜き物件の平面図

ログイン後に

物件情報の全てがご覧いただけます。

会員登録(無料)
北柏のスナック・パブ居抜きの外観
スナック・パブの居抜き物件の平面図
賃料

176,000円(税込)

階数/面積

1F~2F / 20.29坪 (67.09㎡)

敷金・保証金

3ヶ月分

造作代金

相談

飲食条件

飲食可

物件タイプ/現業態

居抜き / スナック・パブ

※会員限定の
情報
ございます。

会員限定の情報がございます。

会員登録(無料)をしていただくと、 物件詳細、物件資料のダウンロード、地図での立地確認など 会員限定の公開情報を閲覧・取得できるようになります。

会員登録(無料)

JR常磐線『北柏駅』徒歩3分、スナック居抜き物件のご紹介です。1階はスナック居抜き・2階は事務所仕様となっております。駅ホームから視認可能かつ目の前には駐輪場がございます。駅からの帰宅動線上に位置しており、地域住民のリピーター獲得が期待できます。分割貸しのご相談も可能ですのでお気軽にお問合せください。

物件概要

会員登録(無料)をすることで
物件情報の全てがご覧いただけます。

会員登録(無料)をしていただくと、他社には出回っていない物件情報の収集、
非会員の方には閲覧できない詳細情報、物件資料のダウンロード、
地図での立地確認など会員限定公開情報を閲覧・取得できるようになります。

会員登録(無料)

地図

会員登録後にご覧いただけます。

会員登録(無料)
×
区分
新着・未公開物件情報

登録で 会員規約プライバシーポリシー に同意したものとします。

※必須

会員登録(無料)
物件詳細や公開情報がご覧になれます!