1階路面、横浜市旭区鶴ケ峰本町のスケルトン物件のご案内です。

ゲスト

営業時間:9:30~18:30(土日・祝日を除く)

ゲスト

1階路面、横浜市旭区鶴ケ峰本町のスケルトン物件のご案内です。

居抜き市場トップ 居抜き物件、貸店舗を探す 相鉄本線 , 横浜市旭区 1階路面、横浜市旭区鶴ケ峰本町のスケルトン物件詳細

相鉄本線

鶴ヶ峰駅

徒歩8

所在地

横浜市旭区鶴ケ峰本町・・・詳細は

鶴ヶ峰のスケルトン物件の外観
鶴ヶ峰のスケルトン店舗物件の外観

ログイン後に

物件情報の全てがご覧いただけます。

会員登録(無料)
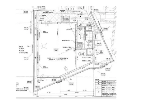
貸店舗(スケルトン)の平面図

ログイン後に

物件情報の全てがご覧いただけます。

会員登録(無料)
鶴ヶ峰のスケルトン物件の外観
鶴ヶ峰のスケルトン店舗物件の外観
貸店舗(スケルトン)の平面図
賃料

132,000円(税込)

階数/面積

1F / 10.13坪 (33.51㎡)

敷金・保証金

6ヶ月分

飲食条件

飲食可

物件タイプ/現業態

スケルトン

※会員限定の
情報
ございます。

会員限定の情報がございます。

会員登録(無料)をしていただくと、 物件詳細、物件資料のダウンロード、地図での立地確認など 会員限定の公開情報を閲覧・取得できるようになります。

会員登録(無料)
  • 路面店

相鉄本線『鶴ケ峰駅』徒歩8分、飲食店ご相談可能な貸店舗のご案内です。2024年11月竣工の築浅物件です。上階は住居、生活に便利な環境が整っている住宅街に位置しています。諸条件等、お気軽にお問合せください。

物件概要

会員登録(無料)をすることで
物件情報の全てがご覧いただけます。

会員登録(無料)をしていただくと、他社には出回っていない物件情報の収集、
非会員の方には閲覧できない詳細情報、物件資料のダウンロード、
地図での立地確認など会員限定公開情報を閲覧・取得できるようになります。

会員登録(無料)

地図

会員登録後にご覧いただけます。

会員登録(無料)
×
区分
新着・未公開物件情報

登録で 会員規約プライバシーポリシー に同意したものとします。

※必須

会員登録(無料)
物件詳細や公開情報がご覧になれます!