武蔵小山駅徒歩3分の自由に造作が可能なスケルトン物件のご案内です。

ゲスト

営業時間:9:30~18:30(土日・祝日を除く)

ゲスト

武蔵小山駅徒歩3分の自由に造作が可能なスケルトン物件のご案内です。

居抜き市場トップ 居抜き物件、貸店舗を探す 東急目黒線 , 品川区 武蔵小山駅徒歩3分の自由に造作が可能なスケルトン物件詳細

東急目黒線

武蔵小山駅

徒歩3

所在地

品川区小山・・・詳細は

武蔵小山のスケルトン店舗物件の外観
武蔵小山のスケルトン物件の内装

ログイン後に

物件情報の全てがご覧いただけます。

会員登録(無料)
武蔵小山のスケルトン物件の内装

ログイン後に

物件情報の全てがご覧いただけます。

会員登録(無料)
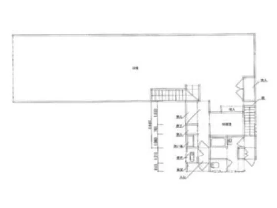
貸店舗(スケルトン)の平面図

ログイン後に

物件情報の全てがご覧いただけます。

会員登録(無料)
武蔵小山のスケルトン店舗物件の外観
武蔵小山のスケルトン物件の内装
武蔵小山のスケルトン物件の内装
貸店舗(スケルトン)の平面図
賃料

1,320,000円(税込)

階数/面積

1F / 31.23坪 (103.27㎡)

敷金・保証金

8ヶ月分

飲食条件

軽飲食可

物件タイプ/現業態

スケルトン

※会員限定の
情報
ございます。

会員限定の情報がございます。

会員登録(無料)をしていただくと、 物件詳細、物件資料のダウンロード、地図での立地確認など 会員限定の公開情報を閲覧・取得できるようになります。

会員登録(無料)

東急目黒線『武蔵小山駅』徒歩3分、飲食店ご相談可能な貸店舗のご案内です。パルムに面する視認性良好な1階路面店。人通りの多い商店街に位置しているため、地域住民を中心とした集客が期待できます。諸条件等、お気軽にお問い合わせください。

物件概要

会員登録(無料)をすることで
物件情報の全てがご覧いただけます。

会員登録(無料)をしていただくと、他社には出回っていない物件情報の収集、
非会員の方には閲覧できない詳細情報、物件資料のダウンロード、
地図での立地確認など会員限定公開情報を閲覧・取得できるようになります。

会員登録(無料)

地図

会員登録後にご覧いただけます。

会員登録(無料)
×
区分
新着・未公開物件情報

登録で 会員規約プライバシーポリシー に同意したものとします。

※必須

会員登録(無料)
物件詳細や公開情報がご覧になれます!