竹ノ塚駅徒歩10分の飲食店居抜き店舗のご案内です。

ゲスト

営業時間:9:30~18:30(土日・祝日を除く)

ゲスト

竹ノ塚駅徒歩10分の飲食店居抜き店舗のご案内です。

居抜き市場トップ 居抜き物件、貸店舗を探す 東武伊勢崎線 , 足立区 竹ノ塚駅徒歩10分の飲食店居抜き店舗詳細

東武伊勢崎線

竹ノ塚駅

徒歩10

所在地

足立区竹の塚・・・詳細は

竹ノ塚のスナック・パブ居抜きの外観
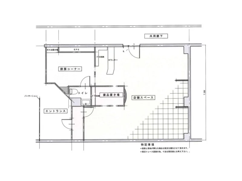
竹ノ塚の居抜き店舗の平面図

ログイン後に

物件情報の全てがご覧いただけます。

会員登録(無料)
竹ノ塚のスナック・パブ居抜きの外観
竹ノ塚の居抜き店舗の平面図
賃料

220,000円(税込)

階数/面積

2F / 31.07坪 (102.72㎡)

敷金・保証金

3ヶ月分

造作代金

相談

飲食条件

飲食可

物件タイプ/現業態

居抜き / スナック・パブ

※会員限定の
情報
ございます。

会員限定の情報がございます。

会員登録(無料)をしていただくと、 物件詳細、物件資料のダウンロード、地図での立地確認など 会員限定の公開情報を閲覧・取得できるようになります。

会員登録(無料)

東武伊勢崎『竹ノ塚駅』徒歩10分、スナック居抜き物件のご紹介です。竹の塚けやき大通り沿いのビル2階テナント!1階ではスーパーマーケットが営業中です。カウンターや収納などがあり、バー等類似業態ご希望の方にお勧めです。

物件概要

会員登録(無料)をすることで
物件情報の全てがご覧いただけます。

会員登録(無料)をしていただくと、他社には出回っていない物件情報の収集、
非会員の方には閲覧できない詳細情報、物件資料のダウンロード、
地図での立地確認など会員限定公開情報を閲覧・取得できるようになります。

会員登録(無料)

地図

会員登録後にご覧いただけます。

会員登録(無料)
×
区分
新着・未公開物件情報

登録で 会員規約プライバシーポリシー に同意したものとします。

※必須

会員登録(無料)
物件詳細や公開情報がご覧になれます!