渋谷駅徒歩7分の飲食店居抜き店舗のご案内です。

ゲスト

営業時間:9:30~18:30(土日・祝日を除く)

ゲスト

渋谷駅徒歩7分の飲食店居抜き店舗のご案内です。

居抜き市場トップ 居抜き物件、貸店舗を探す 東急東横線 , 渋谷区 渋谷駅徒歩7分の飲食店居抜き店舗詳細

東急東横線

渋谷駅

徒歩7

所在地

渋谷区宇田川町・・・詳細は

渋谷の和食居抜きの内装
和食の居抜き物件のエントランス

ログイン後に

物件情報の全てがご覧いただけます。

会員登録(無料)
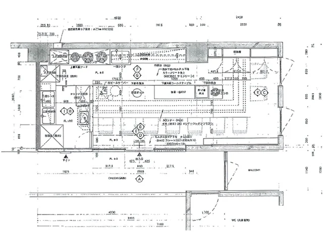
和食の居抜き物件の平面図

ログイン後に

物件情報の全てがご覧いただけます。

会員登録(無料)
渋谷の和食居抜きの地図

ログイン後に

物件情報の全てがご覧いただけます。

会員登録(無料)
渋谷の和食居抜きの内装
和食の居抜き物件のエントランス
和食の居抜き物件の平面図
渋谷の和食居抜きの地図
賃料

297,000円(税込)

階数/面積

2F / 6.44坪 (21.3㎡)

敷金・保証金

10ヶ月分

造作代金

3,850,000円(税込)

飲食条件

飲食可

物件タイプ/現業態

居抜き / 和食

※会員限定の
情報
ございます。

会員限定の情報がございます。

会員登録(無料)をしていただくと、 物件詳細、物件資料のダウンロード、地図での立地確認など 会員限定の公開情報を閲覧・取得できるようになります。

会員登録(無料)

★和食店居抜き★
人気の奥渋エリア!20年以上の営業実績あり!
造作は丁寧に手入れされ、美内装です!

【インフラ】電灯:有    動力:有    ガス:6号メーター    水道:20mm
【厨房排気】有 /有圧扇
【空調】有 / 業務用
【グリスト】有 / 床置き型
【席数】カウンター9席
【トイレ】有 / 共用トイレ(面積外)
【閉店理由】引退  
【営業年数】20年以上
【営業時間制限】無し  
【不可業態】無し
【引渡状態】居抜き
【間口】約5.5m
【天高】約2.6m
※記載の店舗情報は正確性を保証するものではございません。

物件概要

会員登録(無料)をすることで
物件情報の全てがご覧いただけます。

会員登録(無料)をしていただくと、他社には出回っていない物件情報の収集、
非会員の方には閲覧できない詳細情報、物件資料のダウンロード、
地図での立地確認など会員限定公開情報を閲覧・取得できるようになります。

会員登録(無料)

地図

会員登録後にご覧いただけます。

会員登録(無料)
×
区分
新着・未公開物件情報

登録で 会員規約プライバシーポリシー に同意したものとします。

※必須

会員登録(無料)
物件詳細や公開情報がご覧になれます!